学校,作为一个传统的文化空间载体,一直就具有一种对所在城市区域辐射文化价值的功能。如同中国古代的书院与学堂,从来就是一个崇高而纯粹的精神性场所,教化学子、净化邻里(乡里)。这次在深圳进行的新校园设计活动正好提供了一个重塑校园与城市之间空间关系的契机。
作为深圳最早建设的城区,罗湖区内中小学校大多建于上世纪九十年代。随着城市发展和人口剧增、不断提升的教育需求,学校老旧的主体建筑、落后的设施配套、大量的安全隐患、严重不足的学位供给等问题都亟待解决。“为应对今天校园建设所面临的诸多挑战,我们有必要回望教育的起点,积极探讨校园空间设计和现代教育理念、地方生态环境、城市文化传统,以及社区健康发展之间的关系,重新集聚智慧再出发,走向新的校园建筑,让人民感受到孕育未来的新时代。” 2018年10月深圳市罗湖区人民政府联合深圳城市设计促进中心开展“为明天设计—罗湖区校园设计创意竞赛”,为桂园中学、翠园中学东晓校区及东昌小学征集设计创意,探讨集约土地条件下中小学学校建筑空间和校园环境的创新提升。我们参与了全部三所学校的设计竞赛,最终东昌小学设计方案获得了一等奖,桂园中学设计方案获得了三等奖。
“走廊宽阔通透,装有可俯瞰花园的壁龛,在学生有额外用途的时候可以改成教室。这里可以变成男孩们遇见女孩子的地方,学生们可以在这里讨论教授的作品。如果把上课时间分配到这些空间中而不是仅仅作为从这个班级到那个班级的走道,那么他们就不仅仅是走道而是变成了集会的场所——可以自学的场所。从这个意义上讲,它们将变成属于学生的教室。”
——路易斯·康
项目一:最“拥挤”的 / 东昌小学
东昌小学位于深圳市罗湖区太白路南侧,夹在两栋高层住宅楼和水贝石化工业厂房之间,新增用地形状是现状校园向西延伸出来的窄窄的一条,与现状校园有五米左右的高差。现有校园的用地已经非常紧张,不仅无法在课余时间提供足够的公共活动空间,在部分时段学生的体育课甚至不得不在消防通道开展。现有校园主出入口需借用相邻用地的车行道,学生上下学的高峰期校园主出入口人车混行,存在安全隐患。北侧高耸的住宅楼、南侧体量巨大的工业区与校园的小体量和仅有的开放空间形成了巨大的尺度差异,更加深了校园内的拥挤感。学校将在原校区的基础上,拆除违建楼,改造部分建筑功能,并在新增用地内扩建新教学楼,以满足东昌小学未来42个教学班(现有32个教学班)的使用需求。激增的教育需求已经在挑战现有校园的承载力极限,规划道路还需要占用一部分现有校园,校园和城市之间的矛盾在“分界”上激化。
▲ 场地环境
▲ 基地现状
传统中小学作为独立的教育系统,与社区的关系相对疏离。东昌小学拥挤的现状促使我们重新思考校园与社区的关系。我们想探索一种校园、社区、家庭深度交融的可能性,尝试打破校园与社区之间的“硬”边界,通过分享城市空间,使市井生活与校园彼此交融,营造一片让孩子健康成长的土壤。
▲ 市井生活中的校园
以岭南传统的骑楼空间构成一个有厚度和进深的界面。沿校园红线形成一个校园和城市之间的环状带形空间,一个连续开放的多孔体,为社区和校园提供一个休闲和相互展示的公共交流空间,也创造了“零退线”的可能。由于地形存在一定的高差,骑楼下的空间也随之起伏变化,结合校史展览、科学普及等展示功能,成为人行道的拓展,城市街道空间的延伸。骑楼的楼板拓展了校园功能空间,成为运动场的看台和空中步道,也为孩子们提供了一个感知城市和观察社区生活的平台。
▲ 概念生成
▲ 南立面
▲ 北立面
▲ 骑楼界面
▲ 广场界面
▲ 骑楼下的多功能空间
▲ 骑楼和街道
文化骑楼的设置在垂直方向上将校园分成了两个部分:城市共享区与校园核心生活区。这种上下分层的结构使共享区域具备了一定的独立性,方便学校的管理,避免了校园城市共享带来的安全问题。城市共享区位于校园底层,包含食堂、球场、报告厅等功能,周末可对社区开放。校内的各功能用房则聚集在中庭、庭院、运动场等核心空间周围,为师生提供更多的交流机会。2-5层为教学区,其中2-4层主要容纳普通教室,每层两个年级(共14个班),音乐、计算机等公共教学用房主要分布在5层。位于屋顶花园之上的塔楼部分则集中布置了行政办公和教室宿舍,充分改善了教师的办公住宿条件。自此在基本保留了原校舍功能布局的基础上,整个校园形成了多核心多平台的空间格局。
▲ 垂直分层
▲ 多核心、多平台的校园
▲ 西北向街景
▲ 校园内核心空间面对城市的开口
▲ 风雨球场
▲ 室内
文化骑楼为社区与家庭更多参与到孩子的教育中来提供了机会,同时这种开放性所释放出的共享空间使城市资源得到了更合理的利用,它所带来的互动性也充分激活了社区活力。
▲ 鸟瞰
▲ 东昌小学技术图纸
项目信息
项目名称:深圳市东昌小学
项目地点:深圳
业主:深圳市罗湖区政府投资项目前期工作办公室用地面积Site Area:10391.50㎡
建筑面积:30212.08㎡
建筑高度:50 m
项目状态:2018国际竞赛一等奖
项目二:最“宽裕”的 / 桂园中学
桂园中学被一批90年代的住宅小区包裹着,我们项目组中就有曾经住在附近的人、有在桂园中学念书的校友,也有桂园中学老师的家人。在他们口中的桂园中学,是一系列富有情感温度的细节——有刚建校就种下的大榕树,现在已经长成近五(BIM培训)层楼高,已经挂上了保护树木的牌子;有写着“厚德载物”校训的大石头,现在放置在校前区一块仪式性的花园中……校园内部因为多次的改造和功能拓展,流线交叉,功能分散,亟待功能的梳理和空间的重构。这也提醒我们建筑空间的完成只是校园使用的开始,设计应该对教学改革甚至师生日常需求的变化有充分的适应性和包容性。由于部分校舍已经出现了建筑质量问题,桂园中学仅保留三栋建筑,其余建筑全部拆除重建,任务书要求新建校园再满足60个班的教学规模的基础上,充分预留未来的可拓展性,是这次竞赛中动作最大,面积最多,设计条件最为“宽裕”的一个校园。
▲ 桂园基地分析
1961年,Joan Littlewood 和建筑师Cedric Price最早提出了关于Fun Palace的设想——一个人们可以聚在一起享受艺术、科学和文化的空间,一个学习乐园的模型。基于桂园中学“最宽裕”的用地条件、高密度城市背景和合理解决校园可拓展性问题,我们在桂园中学改扩建项目中建立了一个立体多元的教学综合体,描绘了一个多维度多样化校园的垂直风景。
▲ fun palace 图片来源于网络
50m高综合大楼立体整合专业教室、办公、会议、运动、午休等功能,同时释放了有限的校园空间,使普通教室构成的教学区能够有良好的日照和间距,运动场得以实土保留。延续现有校园格局,教学区、综合区、运动场由东到西依次展开。教学区结合保留建筑,能够提供60个标准教室,未来可拓展标准教室达72个。地下车库集中设置在建设区,保留的运动场为校园提供开阔的前场,有利于雨水渗透,亦有机会成为未来的拓展用地。
▲ 整体布局
综合大楼的功能空间在垂直方向上被划分为三种类型:教学区和宿舍区为规则的柱网空间,报告厅、体育馆为大跨度空间,图书馆、社团活动、展览为流动性强的自由空间。报告厅、体育馆、图书馆等公共活动空间放置在-1~5层;办公区放置在6层;专业教室位于7-10层;宿舍位于11-13层。综合大楼如同一个大型的“书架”,不同高度的“书架隔板”成为了不同主题的“地面”,教学区、宿舍区、公共活动区则是“地面”上3~5层的空间,广场、庭院、戏剧性的公共空间被立体的搁置在“书架”的不同高度,成为每个功能区公共活动的核心。兼顾同一类型功能水平方向的便捷可达,同时也着意展现高层教育综合体带来的特殊空间体验。
▲ 功能分析
综合大楼采用巨型悬挂结构体系,既解放了局部的建筑空间,满足多变的层高和大面积无柱空间要求,又为建筑在将来的改造和升级预留了充分的可能性。巨型结构在满足建筑结构的不同工况的同时,也表现了一个开放透明的未来生活学习方式的空间范本。我们将这座综合大楼理解为一个高密度城市背景下未来校园的模型,暴露建筑主要承重结构,强调构件交汇处的构造方式,并将桁架作为建筑室内空间表现的元素,表现结构构造和机器美学。
▲ 结构分析
▲ 东向鸟瞰
▲ 北立面
▲ 北向街景
▲ 操场视角
▲ 中心广场
▲ 专教中庭
▲ 结构层
▲ 社团活动空间
▲ 图书馆
▲ 篮球场
▲ 模型
技术图纸
▲ 一层平面图
▲ 地下一层平面图
▲ 地下二层平面图
▲ 地下三层平面图
▲ 二层平面图
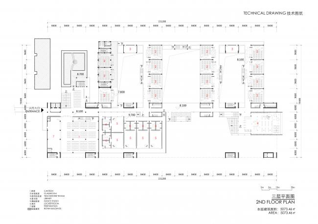
▲ 三层平面图
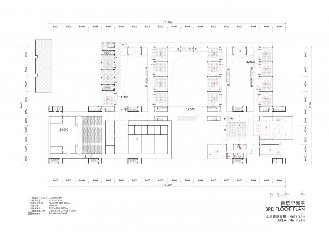
▲ 四层平面图
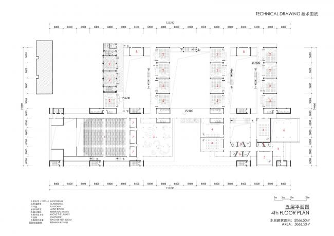
▲ 五层平面图
▲六层平面图
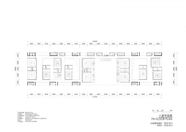
▲ 七层平面图
▲ 八层平面图
▲ 九层平面图
▲ 十层平面图
▲ 十一层平面图
▲ 十二~十三层平面图
▲ 屋顶平面图
▲ 1-1剖面图
▲ 2-2剖面图
项目信息
项目名称:深圳市桂园中学
项目地点:深圳
业主:深圳市罗湖区政府投资项目前期工作办公室
用地面(BIM)积:10391.50㎡
建筑面积:30212.08㎡
建筑高度:50 m
项目状态:2018国际竞赛三等奖
结语
无论是最拥挤的还是最宽裕的,在城市中生长了多年的校园都呈现了和城市共生的咬合关系,校园的边界变得弹性和拓展,校园中的高大植物、纪念石、操场成为城市场所记忆的一部分,开敞的运动场场成为高密度城市中有限的“低密度”区,是视线的通廊和实土场地。区别于一所完全新建的校园,老校园作为一种既有城市的空间要素,是已知城市体验和生态系统的一部分,我们尊重这种由时间产生的痕迹。
东昌小学的文化骑楼重新定义了校园和城市的边界,实现街校交融、社区共享;桂园中学的综合大楼为高密度校园的垂直组织提供了模型,同时保留了城市肌理和土地。城市环境和时间给校园带来的差异化影响,也使得中小学校园这样一个具有“通常范式”的建筑类型出现了具有针对性的不同解法。尊重记忆并预期未来,使我们的校园在城市中发挥其更大的空间和精神价值。
项目团队
主持建筑师:汤桦
东昌小学项目组:
郑昕 杨原 郑立鹏 赵鉴一(实习)卢璟 郑恒彬
桂园中学项目组:
戴琼 张秋龙 林郁(实习) 易熙豪 毛铁勇 汤孟禅
原文编辑:戴琼 郑晨曦 杨杰麟(实习)汤孟禅

BIM建筑网































































