▲ 庭院西向人视
“共生院”的实施从单一主体走向多方协作,是深入探索共生院实施模式的有益尝试。位于大栅栏的茶儿胡同22号院便是由多方协作完成,产权主体希望将疏解腾退后的房屋进行有机更新。
▲ 建筑南立面
清筑建筑已经在胡同中尝试实施过多种形式的“共生院”,茶儿胡同22号院是从自主设计运营转向技术输出的一次全新尝试。
▲ 西南角人视
茶儿胡同22号院是典型的胡同大杂院,已经有建筑师进行过一次改造,运营主体策划设置的功能与其不同,所以需要进行第二次改造。
▲ 半开放庭院人视
为保证胡同的安静,希望引入高素质人才入住,并控制入住人数。
大杂院若要达到和谐共生,需要院内居民一起商议院落使用,当院落公共区域由居民共同商议达成共识并进行“微更新”后也可有效控制私搭乱建的蔓延。
▲ 通过院落居民共同商议的公共区域设置凉棚
大杂院改造过程中需要与邻里不断地进行协调沟(BIM工程师)通,以达到与胡同居民的共生。
▲ 建筑与庭院关系
茶儿胡同22号院的再改造充分尊重原建筑师的外立面设计,对胡同风貌加以推敲,在设计上不做变动,与院内居民达成共识,设计凉棚供院内居民使用,室内从实用性出发,以拎包入住为目标。
▲ 东北角人视
清筑建筑在茶儿胡同尝试了多处“共生院”的改造,希望这些改造可以为片区居民带去参考,以期能提升片区的整体居住品质。
▲ 室内望向庭院
室内
▲ A户型客厅
▲ A户型客厅
▲ A户型客厅
▲ A户型客厅
▲ A户型二层(BIM教程)卧室
▲ A户型洗手台
▲ A户型二层卫生间
▲ B户型客厅
▲ B户型厨房
▲ B户型厨房
▲ B户型楼梯
▲ 梁架
▲ 梁架
▲ 壁灯
▲ 院落示意图
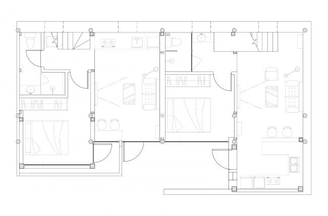
▲ 一层平面图
▲ 二层平面图
项目信息
项目名称:共生院
项目地址:北京茶儿胡同
项目类型:居住
项目面积:113㎡
设计时间:2019.05-06
完成时间:2019.08
建筑设计:刘军,段常续
建筑设计:北京清筑建筑设计有限公司
联系邮箱:[email protected]
材料:砖、玻璃、瓷砖
摄影:刘军

BIM建筑网


























