Saemoonan 教会作为该项目的业主,对设计师提出了四个截然不同的建造要求。首先,建成后的教堂应具备韩国新教母教堂的历史属性。其次,教堂的门必须向天敞开,以作为特定的符号象征。再者,教堂的空间表达,要能将基督视为光明的化身。最后,教堂需要有一个水空间,以表达洗礼与和谐之意。为此,设计师提出了“爱上帝,也爱邻里街坊”的概念,并将其融入方案的设计中。具体来说,“爱上帝”主要是通过内部空间的设计及其象征寓意来展现的。而“爱邻里街坊”则是依赖于教堂的外部造型,及其与周边社区建筑间的形态关系来表达的。
在教堂的设计建造中,传统的哥特尖顶被朝向天空的柔软曲面所代替,而繁复堂皇的装饰则被转化为简洁抽象的现代语汇。此外,与其去强调教堂的权利与威严,设计师选择用前檐的柔软曲线,去彰显上帝的博爱与慈悲。同时,设计师还设计了一个扇形平面,旨在取代传统的庄严长廊,以激发信徒之间的交流和联系。
而设计师“爱邻里街坊”的概念,则可以通过教堂的外形,直观地被人们感受到。而这,也似乎是21世纪教堂设计中,所要深入考量的一点。此外,由弯曲拱门和内凹前檐所围合的 Saemunan-ro 庭院,旨在成为一个面向邻里开放的市民休憩区,而非修道院般封闭的祷告空间。而这样的一种空间形式,在全球范围内都未尝有过。同时,教堂的前厅,还与用于艺术表演的世宗文化会馆(Sejong Center),有着一定的空间连续性。这在一定程度上,也体现了该教堂的开放与包容。而体量较小的教堂,也会基于现有的砖砌教堂,通过比例缩放的形式,进行建造,以供公共文化空间所需。
教堂一侧的透明玻璃盒子,在曲面造型的衬托下,仿佛要于空中消失一般。这个玻璃盒子,不光与一旁柔软的弧墙取得了形态上的平衡关系,还拥有一个可供教育所需的屋顶花园,从而于拥挤的街道旁,呵护了年轻一代的成长与发展。此外,这个屋顶教育空间,还可以作为一个纪念空间,以向每位市民开放,从而使他们尽享首尔市中心的美丽全貌。而这一做法,在世界上许多其他教堂也都有过。只是大部分教堂开放的,都是他们的穹顶空间罢了。
教堂内部
项目图纸
▲ 总平(BIM建筑)面图
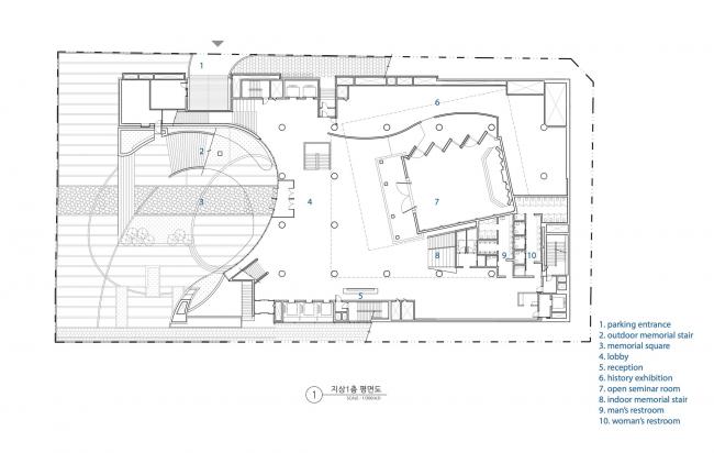
▲一层平面图
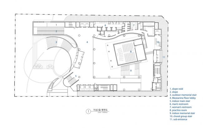
(BIM设计)▲二层平面图
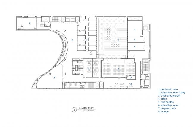
▲四层平面图
▲六层平面图
▲八层平面图
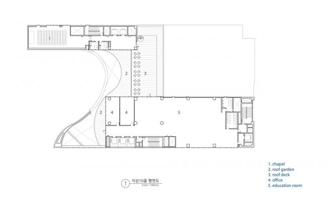
▲十层平面图
▲十二层平面图
▲十三层平面图
▲地下二层平面图
▲立面图1
▲立面图2
▲立面图3
▲立面图4
▲剖面图
项目信息
设计事务所:Lee Eunseok,Seoinn Design Group
地址:97 Saemunan-ro, Sajik-dong, Jongno-gu, 首尔,韩国
类别:教堂
主创建筑师:Dongkyu Choi, Eunseok Lee
建筑面积:4219.0 m2
项目年份:2019
摄影师:Juneyoung Lim
施工方:CJ Engineering & Construction Co., Ltd.
顾问:HanmiGlobal Co., LTD
结构工程师:The Naeun Structural Engineering Co., ltd.
机械工程师:Mac&MEC
电气工程师:Electrical engineer

BIM建筑网




























