正交的街区、矩形半岛的特殊位置,决定了历史悠久的卡迪斯街区(BIM设计)在安特卫普市内与众不同的地位。该街区的空间实施规划强调了展现变迁的安特卫普风格并将正交的街区模式延伸至码头的意图。
该项目考虑结合了场地上原有建筑的风格,拆迁也提供了一个完整的、尺寸超过100m*100m的街区。
规划尺度所涉及的规范在方案的设计上有重要影响:包括尽可能利用城市的方向性并追求开放街区的方案。建筑底层也包含有多种城市功能:零售、超市、餐馆和酒吧、办公室以及老人活动中心。
裙房没有超过三层,而另外住房的四部分体块则被尽可能建高。地下车库取代了原来毗邻的海关大楼的地上设施,另外建筑中公共部分的绿色空间和居住空间相互呼应,同时立面上的开口体现了建筑的透明性。
项目图纸
▲ 场地平面图
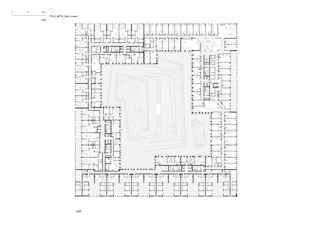
▲一层平面图
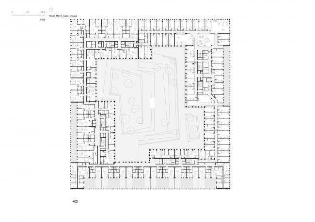
▲二层平面图
▲三层平面图
▲五层平面图
▲九层平面图
▲南立面图
▲剖面图
项目信息
建筑设计事务所:META architectuurbureau,POLO architects
地址:Kattendijkdok-Oostkaai, 安特卫普,比利时
类别:混合用途建筑
设计团队:Niklaas Deboutte, Eric Soors, Philip Mathieu, Bert Goetvinck, Duco Uytenhaak, Willem Baalbergen, Sebastiaan Wouters, Mauro Poponcini, Patrick Lootens, Jascha Rondou, Jef Van Loock, Jens Verley
建筑面积i:41535.0 m2
项目年份:2016
摄影师:Stijn Bollaert
厂家:RENSON, Schuco, Vande Moortel, AGC, Soprema, Heli(BIM培训)o Screen
客户:Cores Development, Builprom, Westhoek
总承包方:thv Kattendijkdok Besix en Vanhout

BIM建筑网
























