S-House是建在日本埼玉县大宫站附近一个居住区里的小房子。在一个不到100平方米的场地上,建筑师将住宅分成两部分,空间上以错层的方式进行组织。在立面上看来,两个部分每层都与相邻的一层交错相连,形成一个复杂的空间体系。
楼板的交错延伸,在外檐形成独特的交织形式。这个复杂的建构逻辑不仅适用于标高平面,也适用于内部空间。在这里,不同楼层之间是交错相连的,两个相对的空间中部是交通空间。
尽管从中间和两边的空间可以有视线交织,但是一个人只能上上下下经过相当复杂的动线到达另一部分。虽然看起来相邻,也是要走很长的路径。
人们普遍(BIM教程)理解的空间深度和距离感正在被模糊,就像互联网上的信息交流改变人们对世界的感知一样。这个建筑实现了这样的网络——类型空间,作为一个“复杂层次的网络”,(BIM建筑)多个层次被网络化和分层,不同的距离之间变得越来越复杂。
我们希望这种复杂的、分层的空间架构能成为一种新的建筑形式。它捕捉到当今信息时代中的各种活动:复杂、多样化。
建筑夜景
项目图纸
▲ 地下室平面图
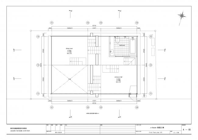
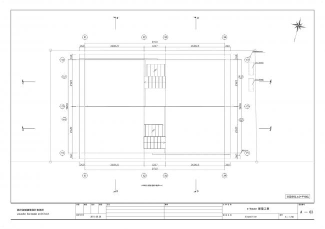
▲ 一层平面图
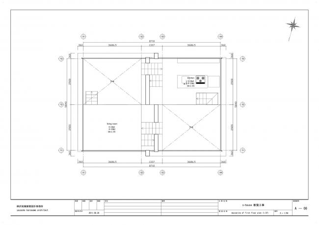
▲ 1.5 层平面图
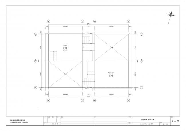
▲ 二层平面图
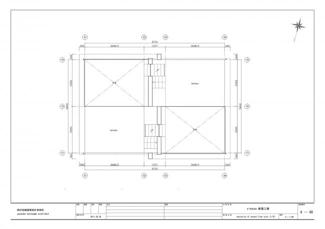
▲ 2.5 层平面图
▲ 屋顶平面图
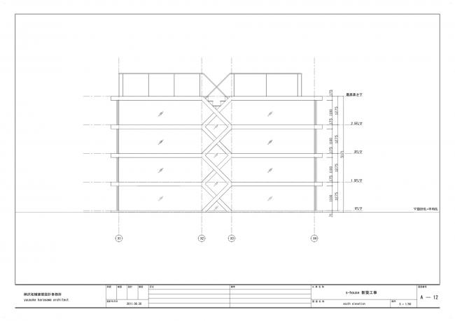
▲ 南立面图
▲ 北立面图
▲ 东立面图
▲ 西立面图
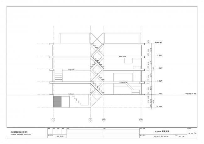
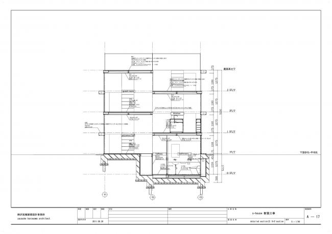
▲ 剖面图A-A'
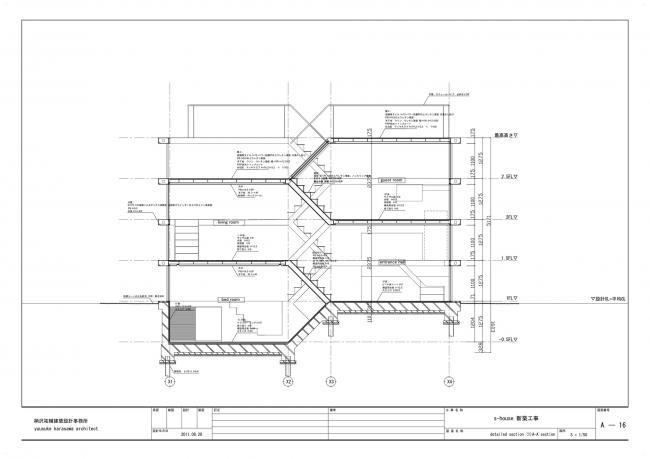
▲ 西部剖面A-A'
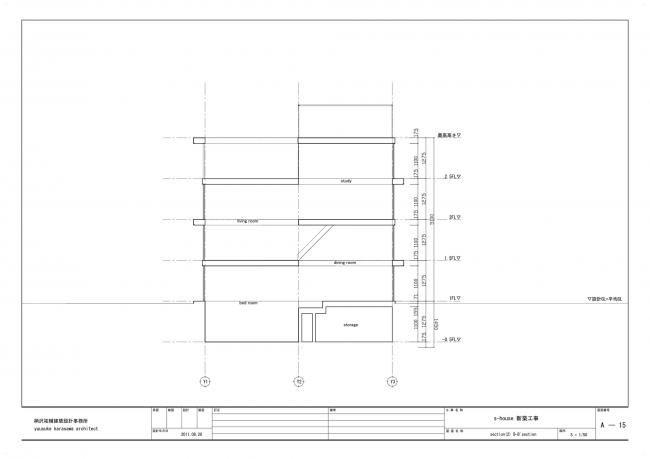
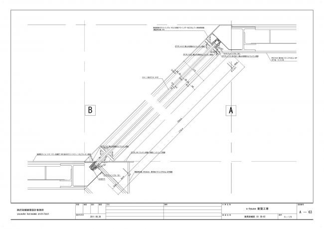
▲ 剖面图B-B'
▲ 西部剖面D-D'
▲ 主门详细平面图
▲ 主门详细剖面图
▲ 浴室门详细平面图
▲ 浴室门详细剖面1
▲ 浴室门详细剖面2
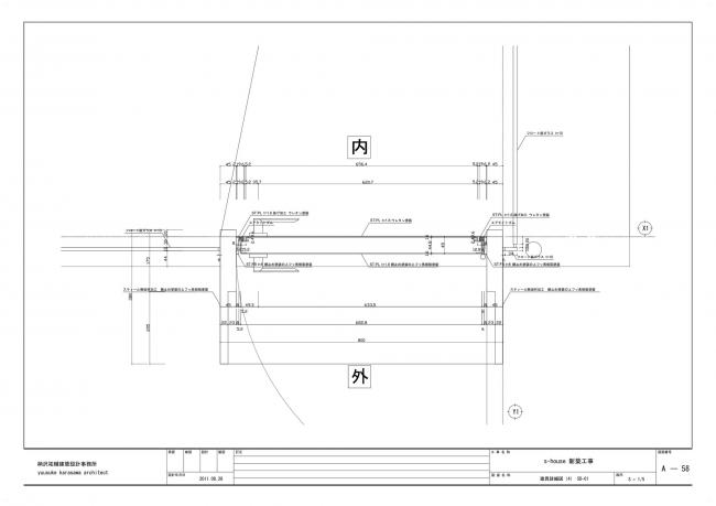
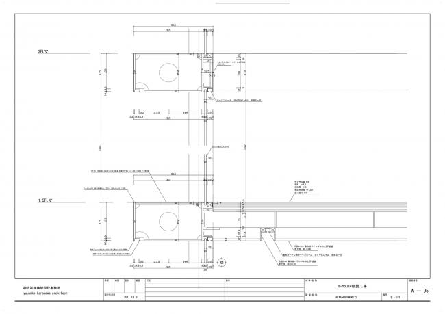
▲ 墙体细剖1
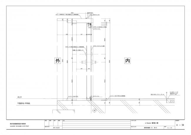
▲ 墙体细剖2
▲ 墙体细剖3
▲ 墙体细剖4
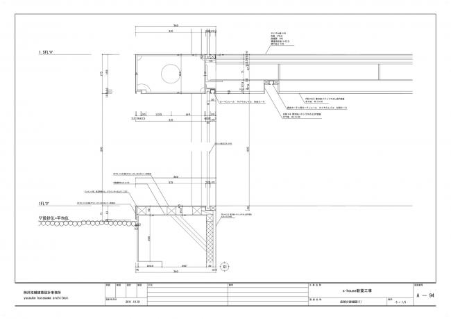
▲ 屋顶窗户细部平面
▲ 屋顶窗户细部剖面
▲ 分析图
项目信息
建筑设计事务所:Yuusuke Karasawa Architects
地址:Chichibu,日本
类别:独立住宅
主创建筑师:柄泽祐辅
建筑面积:104.0 平方米
项目年份:2013
摄影师:鸟村钢一
结构工程师:Alan Burden, Hiroaki Inukai
建造公司:O’hara Architectural and Construction,Ltd / Akira Ohara,Satoshi Kikuch
场地面积:89 平方米

BIM建筑网









































