该项目在2010年赢得了一个公开的国际规划设计比赛。图书与蓝调之家(Bok & Blueshuset)是一座三层楼的建筑,包含图书馆、电影院、现场舞台、咖啡馆、蓝调博物馆、录音室和音乐教室。
▲ 轴测图
Notodden 蓝调节和Europas Bluessenter也在这里设有办事处。建筑的所有功能通过一个开放的前厅和接待处连接。该建筑大量运用了历史工业建筑的元素,这也是Notodden码头地区今天的特色。
不同的功能被组织在各自的体量中,因此从建筑外部就可以知道其功能分布。接待处和前厅上方的三个大灯塔是这栋房子的标志。
项目图纸
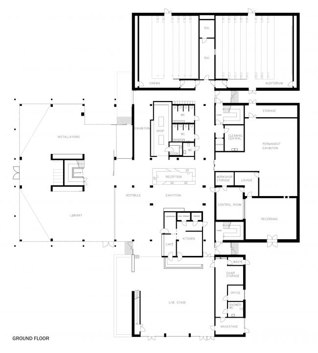
▲ 一层平面图
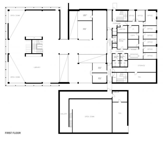
▲ 二层平面图
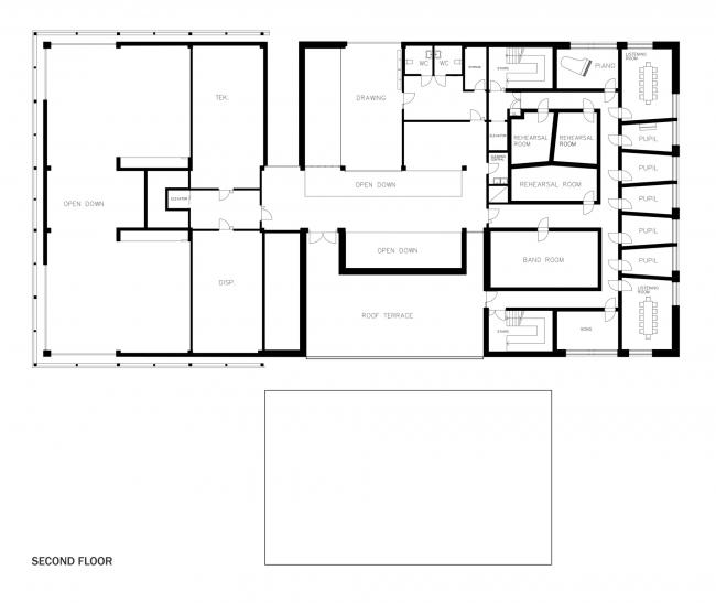
▲ 三层平面图
▲ 立面图
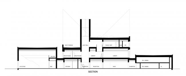
▲ 剖面图
项目信息
设计方:Børve Borchsenius Arkitekter and Askin/Lantto Arkitekter AS
地址:Storgata 1, 3674 Notodden,挪威
类别:文化中心
建筑面积:5225.0 m2
项目年份:2013
摄影师:Espen Gees,Jiri Havran,Ivan Brodey
厂家:Skeie, Cembrit, Autodesk, Lian Trevarefabrikk, Daloc
景观设计:Dronninga Landskap AS
顾问:Eilev Løkja, Cowi, NEAS Brannconsult AS, (BIM教程)Brekke & Strand Akustikk, Multiconsult
合伙人:Sweco, Forene Montører Kongsberg, Notodden Rørlegger Forretning, G.K. Notodden, Murstad Entreprenørservice AS, Heis Plan (BIM建筑)AS, Loe Betongelementer AS, Kranor AS

BIM建筑网






















