▲ 东立面
2014年,Kokaistudios赢得了北京清华大学法学院图书馆建筑及室内设计的国际竞赛。该建筑主要包括研究、教学及办公三大功能,既致敬了传统凹版印刷块,又令人联想到中国首都的标志—胡同和庭院。并由一系列的挑空空间相连,这座建筑为中国一流学府的校园增添了一道亮眼的风景。
▲ 东北向外景
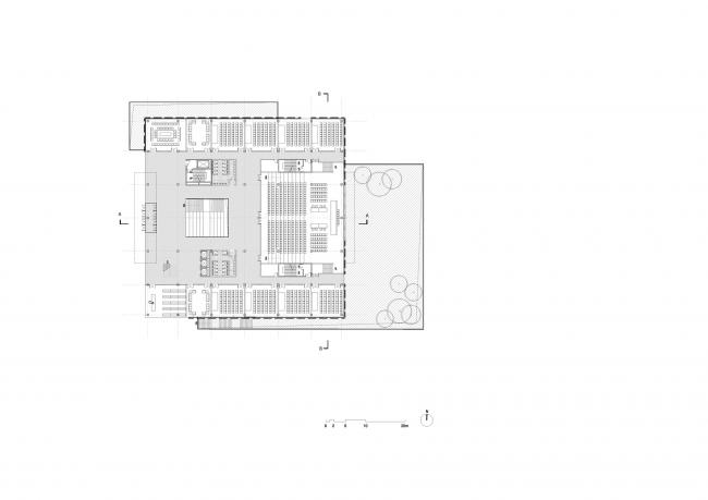
Kokaistudios设计的2万平方米新建筑是校园既有规划的建筑群之一,其重要性为呼应群组下沉区的主题景观,也兼容开放及封闭两种形态的人行(BIM建筑)道,“二元性”是新图书馆的核心理念。
▲ 总平面图
▲ 总平面建筑布局
▲ 总平面人行流线
▲ 功能分区及内部流线
建筑功能垂直划分,低区主要作为开放的公共空间,向上则偏向封闭的私密空间。为与周边的露台及分区景观相协调,图书馆的两个入口被分置于不同的楼层。西侧的入口设在地面首层,并通向一个两层通高的中庭,空间开敞且通风极好,并与一个约450坐席的活动空间相连,主要用作模拟法庭;东侧的入口则设在地下,通往学生中心、自助餐厅及多媒体教室。
▲ 轴测分解流线分析图
▲ 西立面
▲ 南立面
▲ 地下一层平面图
▲ 一层平面图
▲ 入口中庭
▲ 入口中庭
▲ 入口中庭
▲ 模拟法庭
为创造更私密和安静的环境,设计将三层以上的空间整体留给图书馆。中庭三层挑空,顶部天窗提供了充足的自然采光,围绕这一中心,整体布局呈旋转对称状展开:书架区在四周排列,外沿则是阅读和学习区。由一系列的宽大坡道和阶梯式座位区连接,配以浅色的木材,课桌被安置在落地窗边,提供自然光的同时也为使用者提供了舒缓、平静的阅读体验。设计不仅创造了一个可高效利用的空间,更可以让师生和访客在其中自由无拘、连续穿行。
▲ 二层平面图
▲ 四层平面图
▲ 二楼中庭
▲ 三楼中庭
▲ 三楼中庭
▲ 大坡道阅览室
▲ 大坡道式阅览室
再往上走,最上面的三层是学术人员的办公室和研讨室。与下方楼层的开放性形成鲜明对比的是,尺度收窄的入口区平和安静,向内的区域几乎像修道院回廊一般私密。这里同样延续了空间的虚实相生和挑空的主题,设计受中国古典园林的艺术启发,楼层的平面功能围绕着中央庭院来布置。空间的中心点是天窗,设计通过光线含蓄地连接所有元素。
▲ 五层平面图
▲ 六层平面图
▲ 屋顶平面图
▲ 五楼屋顶庭院
建筑内部的挑空的空间主题在室外依然有延续。更为特别的是,阅览和研究区旁连续的一扇扇窗呈锥形对角状,为建筑中部三层增添了透明的质感,效果十分灵动。而外立面的石材覆层呈垂直条状,仿佛是中国经典的竹卷书简。设计与空间的功能相契合,建筑整体会令人联想到传统的雕版印刷和印章,这些与书籍、秩序和法律紧密相连的形象。
▲ 阅览室
▲ 阅览室
▲ 立面图
▲ 立面构成概念
▲ 立面构成原则
▲ 立面构成原则
▲ 东立面
▲ 西立面
建筑周边的空间虚实相映,让人联想到北京迷宫般的胡同,特别是那些掩藏在墙和门之后的传统庭院。镂空的空间也呼应着下沉天井这一主题,而天井正是周边建筑的特色。
▲ 模型鸟瞰图
▲ 总体模型
▲ 立面细部
所有元素相结合为空间提供了学术建筑必需的功能,即学习、研究、交流、沉思。清华大学法学院图书馆是中国最负盛名的法律精英的研习空间之一,这座具有里程碑式的建筑不仅为学生、学者提供服务,更激励着他们在法律学术之路上砥砺前行。
▲ 东南向外景
▲ A-A剖面图
▲ B-B剖面图
项目信息:
建筑事务所:KOKAISTUDIOS
地址:清华大学,北京,中国
类别:图书馆
主创设计师:Filippo Gabbiani, Andrea Destefanis
设计总监:Pietro Peyron
(BIM学习)
设计团队:李伟,秦占涛,Andrea Antonucci, Annamaria Austerwei
业主:清华大学,廖凯原基金会
服务范围:建筑设计+室内方案设计
建筑面积:20000.0 平方米
项目年份:2019
摄影师:金伟琦

BIM建筑网












































