富冈市以其作为世界遗产的富冈丝绸厂而闻名。在以深棕色为主的城市景观中,当地商会买下了一家名为“Yoshino gofukuo -ten”的传统和服店,并打算迁址。该项目起初主要是对历史风貌的复兴,但由于道路扩建,旧会议厅被拆除。与私人住宅不同,传统商店往往很难保持其原有风貌,它需要根据日常需求重新设计。吉野和服店也不例外,它在过去经历了一系列毫无计划的翻修,许多木柱被切断,并由钢框架加固。令人惊讶的是,这家商店以这种形式一直保留到现在。
商店主体部分已经倒塌,很快就只剩下沿街的立面了。这栋房屋很快就被拆除,只有屋瓦被保留下来。仓库虽然失去了一些柱子,但仍可以进行加固并重新使用。两个保留下来的屋顶使用当地传统的抹灰覆盖:仓库屋顶与其原貌相符,主体部分的屋顶则是改建的。
“富冈不是一个仅靠历史遗产而繁荣的小镇,我们希望通过建筑展现城市的未来。”这是商会主席在建造开始时提出的要求。富冈市拥有像IHI这样的航天火箭公司,以及Nihon Kouden这样的医疗设备公司,是许多世界领先科技公司的所在地。
基于尊重传统城镇景观的概念,建筑由(BIM培训)重复的屋顶脊形式构成。该形式也旨在建立结构体系,如同最初的设想一样。建筑师的目的是复原富冈丝绸厂木桁架的原始形象。然而,仅仅原样复制旧建筑并没有什么新意,设计还需要呈现富冈市的未来。在这座建筑中,对角斜撑不像丝绸厂中一样用作桁架梁,而是作为展现木材刚性的构件。这些水平构件在边缘处连接,形成单体式构造的效果。用斜撑和角撑支撑框架,其几何形结果清晰地展现力学动态感。
▲结构框架分析
木构建筑采用的既是最古老也是最先进的建筑技术。木结构的真正价值在于从结构到固定部件之间的连续性。通过这种方式,新商会将会是一个真正的木构建筑,由工匠建造而成。真正的木结构建筑不会过时,随着时间的推移,它会变得愈发成熟、美观并具有特色。我们希望在未来的几个世纪里,这座建筑能成为富冈市的地标,与丝绸厂并立。从结构到遮阳雨棚,对角网格图案重复出现,甚至书架也是由同样的图案构成的。最初,这种图案形状是从建筑屋脊形式中衍生出来的。
然而,后来有人指出,这种图案类似于养蚕时使用的格子框架。此外,该图案与日式菱纹墙非常相似,它是一种白色黏土墙,广泛应用于防火仓库,原来的吉野和服店的仓库也使用了该结构。
一条历史悠久的小路穿过狭长的场地,连接富冈丝绸厂和市政厅。这个空间设计引入光线,并提供一个遮蔽的公共空间,用于举办传统城镇节日等活动。位于道路尽头的仓库已被修复,成为通往历史街区的入口。
道路中轴线使用的地砖回收自旧吉野和服店。沿着街道的前面是大厅,其后方是吉野和服店家族捐赠的一架大钢琴。大厅内没有固定的座位,也没有任何声音控制设备。然而,从街道上可以很方便地进入内部,且大厅空间具有多种功能。从交响乐团音乐会到当地节日舞蹈的排练场所,大厅可以服务于城市公共生活的方方面面。这里是人们聚集的地方,是当地社区的新中心。
项目图纸:
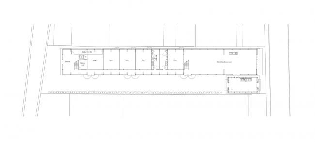
▲一层平面图
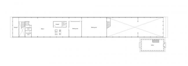
▲二层平面图
▲ 剖面图
项目信息:
建筑事务所:手塚贵晴建筑事务所
地址:富冈, Gunma Prefecture,日本
类别:办公设施
总建筑面积:502.34 m2 (Sleeve storage: 44.95 m2)
设计团队:Takaharu Tezuka + Yui Tezuka + Keiji Yabe
项目年份:2018
摄影师:Kida Katsuhisa – Fototeca
厂家:Autodesk
结构:Ohno JAPAN / Hirofumi Ohno + Ryuhei Fujita + Takehiro Ebisawa
照明设计:Bonbori Lighting Architects & Associates, Inc
楼板总面积:801.64 m2 (slee(BIM设计)ve storage: 86.64 m2)
场地面积:1067.24 m2 (including sleeve storage: 83.25 m2)
最大高度:12,060 mm
立面高度:5,473 mm
楼板厚度:2,964 mm
天花板厚度:2,615 mm
主要跨度:1,600 mm × 1,287 mm

BIM建筑网





















