预制装配式混凝土结构是我国建筑结构发展的重要方向之一。在装配式建筑的推进发展的过程中,其计价方式也随之发生变化,工程造价是工程建设的核心之一,也是市场运行的重要内容,装配式建筑工程造价成为现阶段工程造价管理的重点。今天小编给大家带来的就是关于装配式建筑工程造价的一份干货——装配式建筑相对传统建筑减少的10项内容。
1.钢筋工程
预制装配式建筑工程现场施工的钢筋包括现浇构件钢筋和叠合构件现浇部分的钢筋
(1)现浇构件钢筋工程量减少内容:叠合梁预制部分的钢筋;叠合板预制部分的钢筋;预制剪力墙的钢筋;预制空调板、凸窗板、阳台板的钢筋;预制楼梯等混凝土结构预制构件内的钢筋。
叠合梁钢筋图
(2)叠合处增加的钢筋:叠合楼板处拼缝钢筋;叠合梁的抗剪钢筋(抗剪钢筋伸入剪力墙内长度≥laE);增加叠合梁开口箍处搭接的钢筋;内隔墙处插筋。
叠合板负筋
2.现浇构件混凝土工程
现浇构件混凝土工程量减少内容:(1)叠合梁预制部分的混凝土;(2)叠合板预制部分的混凝土;(3)预制剪力墙的混凝土;(4)预制空调板、凸窗板、阳台板的混凝土;(5)预制楼梯等混凝土结构预制构件内的混凝土。
叠合板拼缝钢筋图
1—预制叠合楼板;2—楼板现浇层
3. 现浇构件模板工程
现浇构件模板工程量减少内容:(1)叠合梁处的梁模板;(2)叠合板处的板模板;(3)预制剪力墙的模板;(4)预制空调板、凸窗板、阳台板处的模板;(5)预制楼梯模板;(6)现浇构件与预制构件接触部位的模板等。
4.砌体工程
砌体部位设计为预制内墙板和内隔墙处,减少砌体工程、同时减少砌体加筋、构造柱及圈梁的钢筋、混凝土、模板等工程量。
5.抹灰工程
预制构件部位的抹灰工程量减少,减少预制楼梯处地面找平工作量。
6.外墙保温工程
有预制混凝土夹心保温外挂墙板,夹心保温剪力墙外墙板处取消现场保温施工。
7.现场施工的垂直运输费
除PC构件吊装机械费用外(湖南装配式建设工程消耗量标准中PC构件安装子目中已含吊装机械费用),由于现场施工工程量比传统施工工程量减少,施工工期缩短,垂直运输费用也会减少。
8.脚手架费用
(1)无预制外墙板的装配式建筑工程,外脚手架与传统施工外脚手架相同;
(2)设计有预制外墙挂板和预制外剪力墙的装配式建筑工程项目,外BIM培训脚手架采用外墙挂架,费用比传统项目费用降低,减少了里脚手架、抹灰脚手架等的使用。
外墙挂架外立面图
9.安全文明施工费减少
现场施工作业人员减少,临时建筑及相关配套费用减少;有外墙板和内墙板的项目安全防护费用减少。
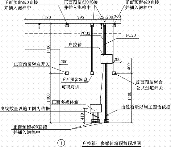
10.现场安装预埋施工工程量减少,因预制构件中已预留预埋
(1)预制构件中的户控箱、多媒体箱、线盒、管线预埋
(2)预制楼板构件中带止水溢环的钢套管
带止水翼环的钢套管预埋
(3)预制构件中带止水翼环的防漏宝
带止水翼环的防漏宝预埋
(4)预制梁构件中钢套管
预制梁中的钢套管
(5)预制构件中防雷
1)预制构件扁网在现场的搭焊
预制构件扁网在现场的搭焊
2)预制构件中防雷预埋的定位
防雷预埋的定位
3)防侧击雷的预制构件预埋
(6)墙体开槽工程量减少
当给水管设计为暗敷时,PC构件在相应的位置预留墙槽,将给水管固定在墙槽内即
可。
防侧击雷预制构件预埋BIM工作
给水管的安装方式
读者福利
以上内容均节选自《预制装配式混凝土结构工程量清单计价》一书。该书由中国建设教育协会及远大住工主编,书中梳理了长沙远大住宅工业集团二十多年、上千项目历练而来的现场经验技术,总结了适用于现阶段我国装配式建筑施工的相关经验,涵盖了概述、预制装配式建筑工程识图、影响预制装配式工程的相关施工方案、工程量清单计价案例分析、工程成本预算编制方法5方面内容。
本书基于实际工程,提供了大量第一手图纸,且通过A3插页将图纸最大限度地进行了还原。书中从工程实例出发进行的讲解,可以为相关从业人员提供切实可行的参考依据和仿真模拟。
扫码优惠购书
作者:谭新明 李云等
文章来源:建筑工业化装配式建筑网

BIM建筑网













