The Confluence是一个具有象征意义的城市中心,在21世纪的头二十年,它将成为具有历史意义与代表性的中心。“confluence”这个词表示会面和聚合。在里昂这一片区,有许多市民与社会行动者的聚会,也有多种风格的融合。我很高兴能参与到这样一个文化温床和解放更新的整个过程中来,每个项目都需要找到自己的位置。Ycone将被现有的建筑包围,成为未来世界的一部分。因此,关注将来发生的事情是很重要的:我们不是着眼于今天,而是为了规划更好的未来——这意味着我们将要面临很多风险:在城市主义中,未来的规划可能会消失得无影无踪。
Ycone是一个拥有大量混合使用空间的项目。我们提供的公寓不是直接为来自相同的社会阶层,或者有着相同的抱负的人设计的。Ycone还将提供零售店。该项目将面对办公大楼,并坐落在铁路旁边。它的规模相较于平均水平略大。但Ycone的目标并不是成为一座城市的“纪念碑”:这座建筑将成为新街区生活的一部分,并需要有自己的特色。
Ycone被三个项目环绕,它的位置是预先确定的。我试着把大楼转过来一点,把它推到一边,然后再推到另一边,想弄清楚我怎样才能和周围的大楼展开积极的对话。但这种讨论基于两个条件:城市和舒适。通过一种我称为“绿色过滤器”的组织,让住在这里的人感觉良好,有宾至如归的感觉,他们不会忽视邻居,甚至会给他们送礼物。相较于周边建筑,这种“绿色过滤器”使建筑稍微安静一些,与此同时,我们在建筑周围引入一个公共空间,一个提供不同层次的微型公共空间,它位于整个空间的中心。该建筑被安置在带露台的花园里。我们希望把访客的车小心而优雅地“隐藏”起来。这一定位是我们的第一个挑战。最糟糕的结果将是设计一栋和其他由自动城市系统产生的建筑一样的建筑,这是可悲的,就像我们在今天的非城市中看到的大多数建筑一样。
无论是凑近了看还是远眺,项目周围的风景都很有重量感。首先,该区域有不同的地平线,山脉的线条丰富多彩,起伏的地形相差各异。同时有铁轨和火车。我喜欢铁路的诗意,我认为在未来的几十年里,它将成为关注的焦点,承载越来越多的怀旧情绪。我们需要保护远处的风景,让人们站在公寓内就能欣赏到,同时我们还需要保护近距离的景观,要意识到自己是正在建设中的城市的一部分。
由于第二个立面非常轻盈,而且只是局部有围合,Ycone淡化了相似性,在光线、感觉与平面上创造了差异性,即便这个差异很小。重要的是,它在每个目标元素的层次上发挥差异化的作用。由于朝向不同,四个立面并不相同。采用通常的手法在基础上建造一定程度上能改善立面,但你必须真正表达这些差异性。
Ycone标志着两栋大楼合二为一。该项目为低层公寓提供了更高的高度,并允许两套公寓打包出售,这种情况时有发生,即便它们不属于同一类别。类型学总是提出一些没有答案的问题,我们认为建筑师需要创造一些类似电影剧本的东西,一种对生活在那里的人来说可能有意义的剧本。没有什么比发现自己站在原地,手里拿着一件没有问题的工艺品更糟糕的了。
立面设计在两个层次上,联系着两个面。两个面之间的缺口将成为生活空间,一个介于两者之间的区域,日本人称之为“间”(ma)。人们将住在那里,在那里吃早餐、吃晚餐、散步、种植盆栽……两个立面将叠加两个组合,然后形成一个略微复杂的组合。有人说这是不稳定的,但这显然不是。事件的结果与一定数量的约束条件相关联。你会试图从内部构建事物,试图保护自己不受某些事物的影响。从外部看,结果将取决于一组约束条件,如果可能的话,这些约束条件会被带到这里的这个故事里进行修改、调整和润色,我们将试着把这个故事讲得更深入一些,让它更容易被理解。
设计图纸
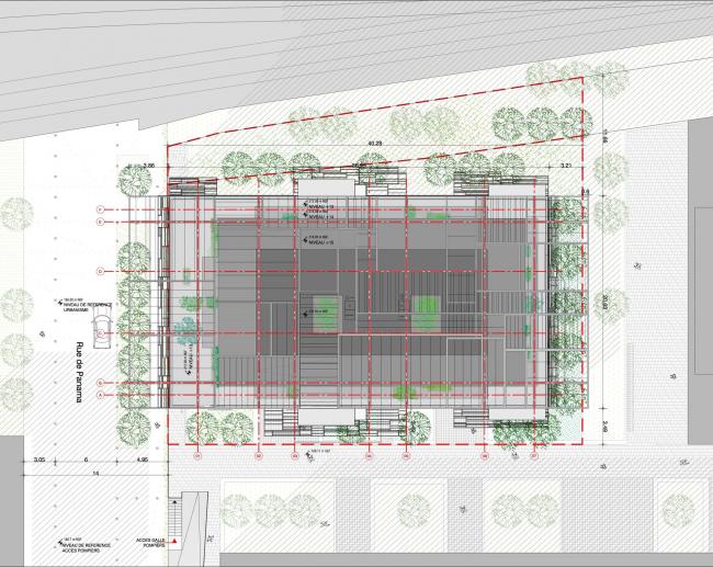
▲ 首层平面图
▲地下室平面图1:500
▲地下室平面图1:200
▲一层平面图
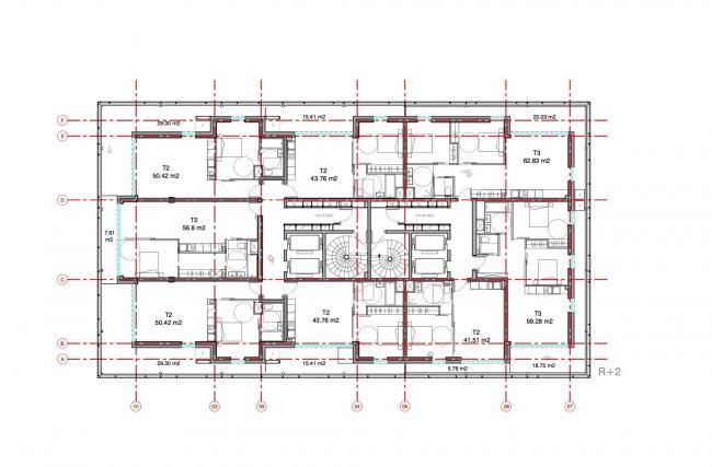
▲二层平面图
▲三层平面图
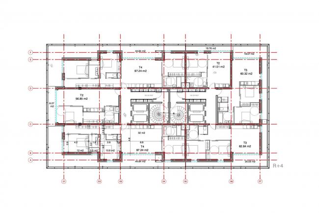
▲四层平面图
▲五层平面图
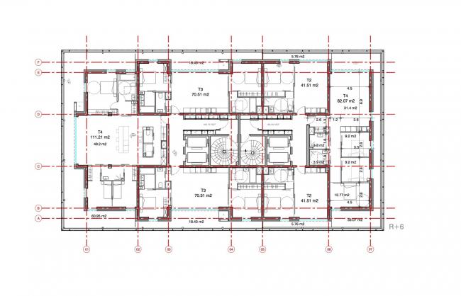
▲六层平面图
▲七层平面图
▲八层平面图
▲九层平面图
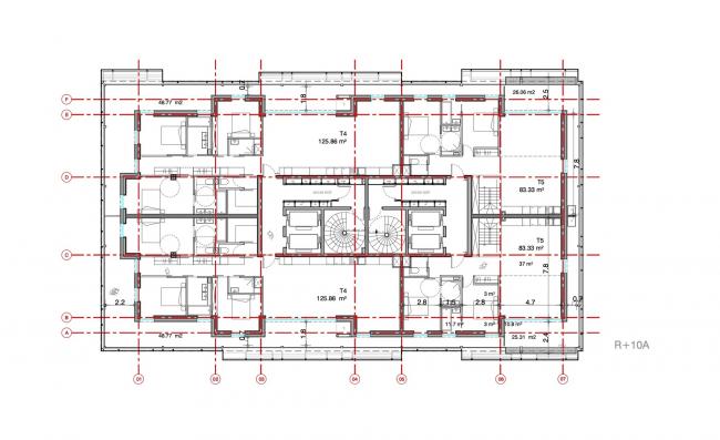
▲十层平面图
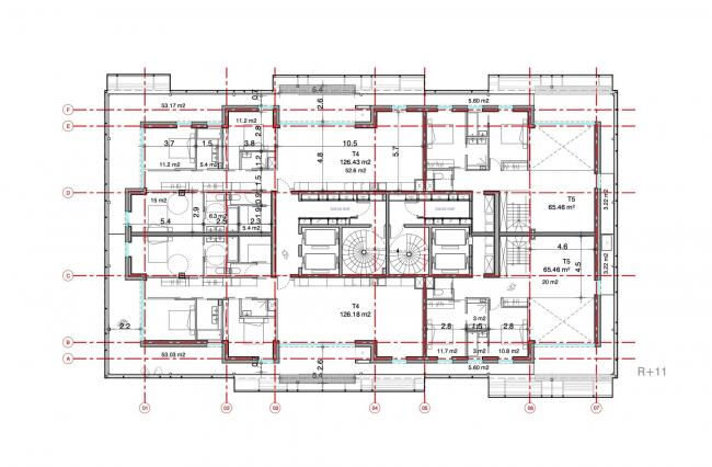
▲十一层平面图
▲十二层平面图
▲十三层平面图
▲十四层平面图
▲屋顶平面图
▲外立面
▲立面图
▲立面图
▲立面图
▲立面图
▲剖面图
▲剖面图
项目信息
建筑事务所:让·努维尔建筑事务所
地址:Passage Panama, 69002 Lyon,法国
类别:公寓
主持建筑师:Jean Nouvel
项目负责人:Thomas Amarsy
建筑面积:7461.0 m2
项目年份:2019
摄影师:Guillaume Perret,T. Mercadal,Morel Journel
项目执行者:Alberto Rubin Pedrazzo
建筑团队:Victoire Guerlay, Rui Pereira, Marie Charlotte Prosperi, Qiang Zou
实习生:Clarisse Estang, Guillermo Gonzales, Rémi Lapostolle, Daniel Martinez, Onur Ozman, Giulia Piana
效果图:Benjamin Alcover, Lionel Arnold, Mizuho Kishi, Sébastien Rageul, Franklin Tresca
3D建模:Alexandre Braleret, Laura Joo, Jim Rhon
平面设计:Rafaëlle Ishkinazi, Marlene(BIM) Gaillard, Eugénie Robert, Vatsana Takham
室内设计:Sabrina Letourner
景观设计:Project (APS/PC) : Laura Giulian(BIM教程)i – assistant : Jérôme Dureault – Project & Execution: Isabelle Guillauic
工程师:Cost consultant: PROCOBAT, Structural work: COGECI, Building services: KATENE, Facades: ARCORA, Acoustics: GENIE ACOUSTIQUE, Thermal: KATENE, Sustainable development: ETAMINE, execution architectural team: CARDINAL réalisations, Security: SOCOTEC

BIM建筑网



































