猫享BOX位于上海市普陀区潮州路508号文化创意产业园区内,羽毛球运动员王仪涵(羽毛球世界冠军)退役后,注册猫享文化品牌IP,同时为将运动精神延伸,出资搭建了这个以羽毛球为主题的创意空间——猫享BOX。
按国际比赛规定,整个球场上空空间最低为9米,在这个高度以内,不得有任何横梁或其它障碍物,球场四周2米以内不得有任何障碍物。此建筑原为老厂房,具有足够的空间高度,故选址于此。此外,在强调“强社交”属性的当下,通过这样的配置和建筑理念,让“运动+社交”变得轻而易举且充满可能性。在顶级运动设施(BIM工作)的加持下呈现轻松意境,在年轻化的夜店风格中贯彻运动精神,在迷离氛围中觥筹交错实现社交目的,这或许正是为猫享BOX赋予的全部建筑意义。
▲ 羽毛球场
足够空旷的场地是此空间设计的特点之一,这也是取决于场地的功能使用,整个羽毛球场的设计规格完全按照国际比赛规定设置;其二则是内部不断变化的(BIM培训)光线,根据不同的场景设计不同的灯光改变颜色和闪烁的频率。不同维度、不同氛围的灯光交织在一起,相映成趣。同时此空间也是高科技运动综合体,使人身临其境地享受虚拟现实体验。
室内游泳区设计为空间当中最大的亮点之一—无边泳池系统。泳池周围以海洋球进行装点,LED柔光霓虹灯、栅格状不锈钢酒架的设计,不锈钢反射光影,光线穿透酒瓶,泳池party和光影横竖变化让整个空间氛围达到极致。
▲ 无边泳池
▲ 兼具娱乐元素的泳池
▲ 炫色吧台
此空间作为一个独立KTV包厢,LED灯带在空间墙面以及顶面上排列组合成不连续的线条,在其地面投射出不同光影。整个空间,都是采用了钢石类等冰冷的材料,但是灯光的色彩加入以后,却显得光怪陆离迷幻绚丽。
▲ KTV
卫生间的灯光设计则区别于其他空间,整个光源呈现出橘色暖光,通过迷离的灯光和镜面的反复折射,营造一种迷幻的效果,在狭小的卫生间里光和人影交错让人仿佛置身迷宫一般。
▲ 迷幻洗手间
二层则是观看平台以及VIP卡座区。整个空间另一特色则是铁丝网中展示猫享BOX的品牌IP形象展示,铁丝网造型的设计灵感源于羽毛球羽造型,当灯光亮起,此为展示区;当灯光暗下,此部分能完美隐藏于整个空间中。
▲ 看台包厢
同时我们也对建筑外立面进行了改造,将羽毛球网纹样和IP形象绘于墙面,将主题贯穿整个建筑。
▲ 立面图
▲ 体量关系图
▲ 体量关系图
▲ 设计过程示意图
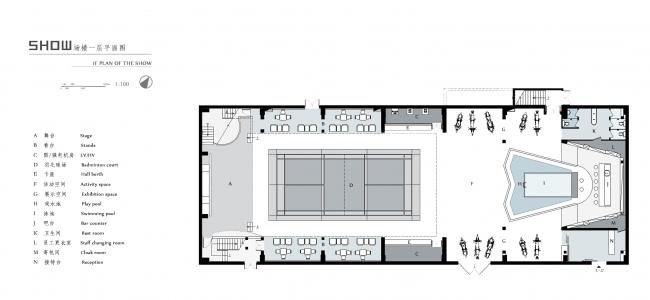
▲ 一层平面图
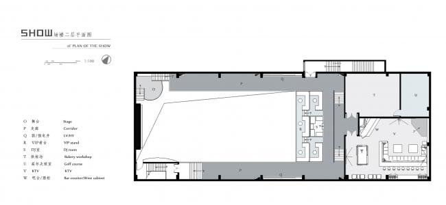
▲ 二层平面图
▲ 剖面图
项目信息
项目名称:猫享BOX
项目地址:上海市普陀区潮州路508号文化创意产业园区设计方:COLORFULL 昱景设计建筑面积:2000㎡
公司网站:http://www.colorfull-design.com/
联系邮箱:[email protected]项目设计 & 完成年份:2018主创及设计团队:赵宗阳,小野良介,李立群,安部井乔,张凡星,张亚云,陈龙波,彭王思琪摄影版权:赵航客户:上海猫享文化创意股份有限公司
材料:LED霓虹灯、OSB吸音板、彩色亚克力板、喷砂不锈钢

BIM建筑网
















