▲ 夜景形象
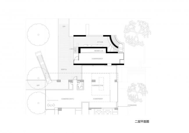
双主题展厅
南京艺术学院在热闹拥挤的宿舍楼群间寻到空地一块,准备利用原46号宿舍楼底层的公共用房改造并扩建一个两层的艺术展厅,下层“古瓷片研究展厅”,上层“古油画修复展厅”,两个主题一中一西,并要求分别管理,互不相通。
考虑到艺术与传统的平和素淡的共通气质,我们设计了一个清水混凝土的小房子,名为“砼展厅”,并利用内拱板的反弧拉通了一个有天光的通高空间,为两个主题提供了对话的机会。
▲ 整体形象
社区营造
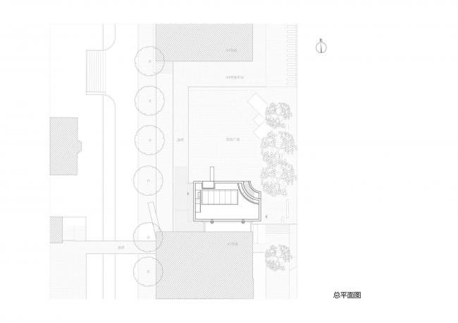
新宿舍楼群是被称为“创意街区”的生活区,“砼展厅”背靠46号高层宿舍,北向面对楼群间的一个小广场,东侧透空围墙外是城市道路虎踞北路,西侧是校内北高南低的一条铺砌着块石的步行街,充斥着咖啡厅、书吧各种创意小店及艺术装置,颇有人气。
▲ 半鸟瞰
▲ 整体外观
高校就是一个小社会。在艺术院校盖房,又盖在热闹的宿舍区,维持并激发这个区域的良好社区感成为设计的初衷。两层房子一、二层分别与街面和原有的联桥相接,本就有较好通达性。我们更进一步,硬是从有限的建筑面积里再挤出一块室外空间,在二层辟出一条穿过式的拱顶外廊,吸引几个方向来的人群向内聚性的广场移动。
▲ 室外连桥
▲ 拱下走廊
▲ 立面形象
改造加建
南京艺术学院是江苏省老校区改造提升的典范,坚守原址逾60年,虽校园面积狭促,然新老建筑与校内山坡绿植穿插掩映,空间层次生动丰富,深得师生喜爱。这次的“砼展厅”加建,仍然是延续学校建设“见缝插针”的腾挪身法,内装改造为主,扩建部分很少,并在两者衔接处施以对原有基础植筋加固等手段来满足新的技术规范要求。
在这里,改造加建的要点不是技术攻关,也不是增加多少面积,而是延续校区浓郁的艺术生活氛围,以场所特质吸引学生自发的群聚交往活动。
▲ 延续原有场地建筑的氛围
空间与造型
内外双拱给这个有雕塑感的小房子一抹西式艺术空间的色彩,但空间原型的来源之一其实是南京灵谷寺的无梁殿。外拱拱顶清水混凝土的特殊质感暗喻了油画的笔触和古陶瓷的碎片,但更多的是带给置身其间的人以某种温和的安全感,这个感觉会在夜晚暖色的灯光下被进一步加强。
▲ 古油画修复室前厅
▲(BIM工作) 拱型幕墙
▲ 古油画修复室交流中心
▲ 光井展厅
为避让院子里的香樟,建筑临街的一角做了退让,这也给下行的楼梯提供了几何化的造型机会;在这面弧墙的背后,一弯天光旖旎铺洒到楼梯踏步上,使郑重的拱廊空间平添了活泼的生气。
▲ 弧形天井
▲ 弧形楼梯
▲ 弧形楼梯
新加设的锈钢板楼梯斜搭在跨街连桥上,从浓郁的行道树中露出一截,成为藏在背后的展馆一笔轻巧的提示。
▲ 加建钢梯
设计图纸:
▲ 总平面
▲ 一层平面
▲ 二层平面
▲ 屋顶平面
▲ 东立面
▲ 西立面
▲ 北立面
▲ 1-1剖面
▲ 2-2剖面
项目信息:
建筑事务所:上海中森建筑与工程设计
地址:南京艺术学院,虎踞北路15号,鼓楼区,南京市,江苏省,中国
类别:美术馆
建筑设计:张男、张晓远、孙晓、欧仁伟
建筑面积:560.0 平方米
项目年份:2019
厂家:SKK
结构:金建、邱玉龙、刘勇、王锋
给排水:黄煜金
暖通:宋凌晔
电气:曹克岚
照明设计顾问:北京宁之境照明设计公司
建设单位:南京艺术学院

BIM建筑网




























