这是一个四层楼的建筑:包括一个(BIM建筑)地下停车场,地面上为(BIM学习)三层,分成了六个功能区域:其中一楼为公共区域,主要由以下领域构成:前庭区,餐厅,图书馆、礼堂、体育馆、文具间、复印室。教学区域位于二层和三层的一部分,另外还包括学生用的教室和工作间。部门办公室和会议室和顾问教师都在三层。
管理和秘书区域位于一层。停车场位于大楼的地下室半地下室,一共可以容纳300辆车。从外面的独立入口可以进到教堂里。
该建筑的初步设想是提供一个亲密的,类似于家庭式的建筑,主要体现在空间里光线的处理方式和陶瓷皮肤带来的纹理。这个建筑的重要性从项目一开始的论证过程就体现出来了。一层只是作为一个进入空间,因此会受到一些压缩。
整个建筑采用了陶瓷砖作为外墙装饰,环绕在整个建筑外墙上。这种基本方法解决了结构问题,屋顶桁架包含两层楼,由教室和各部门组成,由于被支架托起因此省去了跨度,让公共区域能够在户外区域和景观平台上进行连续性开发,而这一切是由一个强大的悬臂结构提供保障。
设计图纸:
▲ 地下室平面图
▲半地下室平面图
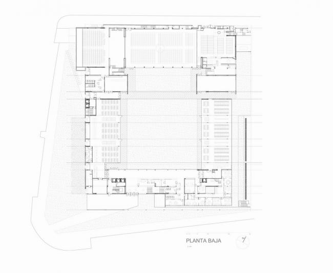
▲一层平面图
▲二层平面图
▲三层平面图
▲剖面图G-G
▲剖面图L-L
项目信息:
建筑事务所:Ramón Fernández-Alonso
地址:格拉纳达,西班牙
类别:其他教育设施
技术建筑师:Miguel Ángel Jiménez Dengra, Rafael Palma Moyano y Francisco Torres Ramirez
面积:19756.0 m2
年份:2012
摄影师:Jesús Granada
厂家:Lopez Soto, B.lux
开发商:Arzobispado de Granada
承包商:Construcciones Calderón S.L.
照明设计:Anton Amann, arq., Mikel Juarrero, ing. ALS Lighting
照明设备:B.lux
陶瓷:Cumella. Decorativa
家具:Decofisur
成本:14.919.265,26 euros

BIM建筑网





















