概念上来说,该项目在现存房屋的上方嵌入两间加大的小屋——一栋包含父母的卧室和设备,而另一栋是儿童的卧房。
黑色的雪松木遮盖了每一栋小屋的周边从而创造了有趣的形式,以及内外部表皮的连续性,进而强化每一栋小屋的自主自然性。
该项目将从前密闭少光的家庭变为一栋自然光充足的开放式布局的家庭起居空间。巨大的空腔和北向的引入强烈自然光的高窗被引入建筑内部。光线被黑色的雪松木墙削弱变柔和,形成了下方舒适的集会空间。
首层是个连续的开放平面布局空间,将房屋中不同区域的活动联系起来,同时又不使其相互干扰。悬空的小屋形成了后方的露台,划分出了家庭聚会冗余空间以及休闲活动空间。
设计图纸:
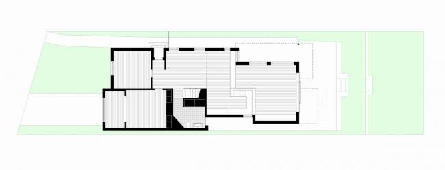
▲ 一层平面图
▲ 二层平面图
▲ 剖面图
▲ 轴测图
项目信息:
建筑事务所:Benn & Penna Architects
地址:Naremburn,澳大利亚(BIM设计)
类别:加建项目
主创设计师:Andrew Benn
设计团队:Sean Tran, Kirsty Hetherington, Alicia Bell
建筑面积:150.0 m2
项目年份:2018
摄影师:Tom Ferguson
厂家:Tongue & Groove, Vectorworks, Brodware, Cedar Sales
业主:Undisclosed
工程师:PMI Engineers
微信公众号:xuebim
关注建筑行业BIM发展、研究建筑新技术,汇集建筑前沿信息!
← 微信扫一扫,关注我们+

BIM建筑网




















