导语
湖州南浔幼儿园位于南浔城市新区核心区块之中,西临南林路、南临中心街,东侧北侧为规划河道和城市绿化带,北侧为南浔博物馆项目,东北侧为市民广场,东侧为规划的生态儿童公园。设计师以威廉·黑兹利特的“去想、去感觉、去做自己感兴趣的任何事的自由,完全的自由”为设计理念,建设了一座大、中、小班各8班,可容纳约720名幼儿的幼儿园。
▼ 项目概况
景观与建筑的相互渗透——第一活动空间
建筑总体呈变异的环型,呼应基地的景观格局,建筑整体西南高,东北低,形成起伏的建筑形态,内庭院向东北侧打开,渗透河道和公园的景观。这样的布局和形态呼应城市设计的空间格局特点,向外塑造了相对硬朗的城市界面,向内营造舒适安全的自由环形活动空间。幼儿接送场地结合东侧生态公园统一设计,通过步行桥与基地内主入口广场相连,为幼儿园入口空间增加趣味性。
▼ 北部鸟瞰
▼ 东北鸟瞰
▼ 景观渗透建筑
城市新区中的趣味庭院——第二活动空间
内庭院作为整个建筑的核心,连接普通教室、各专业教室、办公楼、门厅、多功能教室和食堂。庭院内部设置不同的植被,景观,游戏场地,塑胶跑道等,形成多元化的互动空间,为幼儿园内的大型交流活动提供了场所。设计者希望儿童能够尽可能的交流玩耍,同时也希望老师在带领儿童体验生活的时候没有安全死角,场地内部的主要视野范围内避免了高大的乔木,同时结合地形做了许多缓坡,丰富的曲面地形给幼儿园小朋友带来不同的娱乐体验。
▼ 内庭院
▼ 在庭院奔跑的儿童
▼ 内庭院转角
▼ 内庭院东北角,向外开放
如果说第一空间是建筑环境对于建筑的渗透,那么第二空间则是建筑设计自身营造的内聚空间,整个院落空间将专业教室,公共活动空间和室外庭院完美地结合为一体。
起伏的绿色屋顶——第三活动空间
起伏的屋顶活动平台有极佳的景观视野,在保证安全的前提下,结合屋顶花园打造空中的游乐活动场地,充分发挥地块沿河毗邻公园的景观优势。并设置不同的植被,景观,游戏场地,塑胶跑道,突出幼儿园建筑童心童趣的特点。
▼ 屋面大台阶
▼ 孩子们在(BIM设计)屋面台阶上行走、嬉戏
色彩斑斓的立面设计
建筑立面采用水平向自由开窗形式,保证最大限度地采光。通过不同的颜色釉面玻璃板的搭配,塑造幼儿园建筑的可爱活泼的形象气质。内院自由活动场地的立面采用水平向栏板,层层错动形成多层级的活动平台。
▼ 自由开窗的庭院立面
在建筑单体色彩上,使用白色作为建筑立面的主要底色,以橙色和绿色的玻璃板作为点缀,(BIM建筑)而幼儿教学空间和配套建筑的立面色彩,使用分楼层附色的方法,加强各个楼层的可识别度,部分贴面木板,给幼儿亲切的使用感受。
▼ 色彩斑斓的立面
结语
幼儿园是幼儿在成长的过程中接触到的第一个公共空间。幼儿园建筑整体氛围对于幼儿的感知与认识都有很大影响,幼儿园的活动空间不应该仅仅局限于物理空间,更应该通过空间的营造与拓展去体现一种教育体质与教育观念,这对于建筑师也是一个挑战。如何通过寻找建筑与环境的关系,建筑庭院空间的营造以及对于幼儿园建筑 “第三空间”的探索,从而去拓展丰富的活动空间是本案在设计上探寻的核心议题。
▼ 对建筑与环境关系的探索
▼ 模型
▼ 一层平面图
▼ 二层平面图
▼ 三层平面图
▼ 南立面 & 北立面图
▼ 东立面 & 西立面图
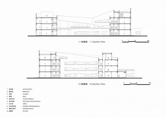
▼ 1-1 剖面 & 2-2 剖面图
项目信息
项目名称:南浔镇中心幼儿园新址扩建工程
项目位置:浙江省湖州市南浔区嘉风路
建筑面积:10030m2
完工日期:2017.09.29
立面材料:白色和彩色高级外墙涂料,铝合金窗,釉面玻璃板
设计单位:浙江大学建筑设计研究院有限公司(www.zuadr.com)
设计总负责:王玉平
工程负责人:莫洲瑾
设计师:苏仁毅,宣万里
结构:张杰,曾凯,吴杰
电气:沈月青,冯百乐
给排水:易家松,陈飞
暖通:潘大红,丁德
弱电:江兵,张武波
摄影:金伟琦,章勇

BIM建筑网

























