圣经博物馆是专门收藏最古老书籍的博物馆,这所全新的博物馆建筑有8层楼高,建筑面积约为40000平方米。该建筑的前身是一所位于华盛顿西南部建于1922年的冷库。新博物馆的设计精髓在于其对现代主义的坚持,包含了独特的建筑形式和最前沿的科技。建成后的建筑就像是手稿里的文字,随着时间的推移添加和删除,有着多个版本的历史痕迹。建筑设计本身并没有简单的复制圣经的符号,而是通过大量的隐喻和微妙的暗示。
建筑本土结合了时代审美和经典设计。圣经博物馆的建成体现了多方的同心协力,鼓励不同的声音和意见。博物馆的亮点体现在其划时代的建筑功能上,是代表了当代主义建筑风格的博物馆设计。相较于传统的博物馆主要包含展览空间,演讲和教育活动的空间,商店和咖啡厅;圣经博物馆的功能不止于此,其功能设计具有更大的野心。
圣经博物馆的设计囊括了许多功能,与其定义为单体建筑,这栋博物馆更像是一个建筑的集合体,由相关的功能连接。这一切都建立在紧张的城市空间里,并且大部分空间也被现有的建筑限制。为了在复杂的空间中找到秩序,建筑师使用了辐射状的动线系统,主要的动线中心为明亮平静的空间,为参观者提供一个可以休息和重新定位的空间。
动线组织:
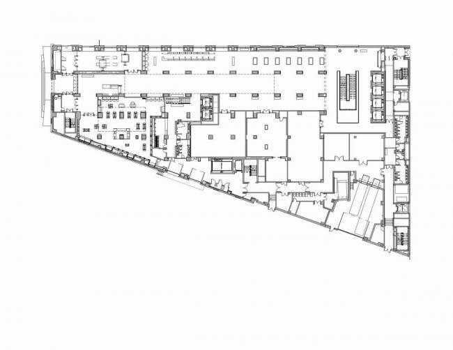
▲ 一层平面图
博物馆的动线中心链接了屋顶的建筑,包含一间餐厅,一个会展空间和一个大型的表演艺术中心。链接表演中心和舞厅的是一个曲线玻璃立面的预备区,在这里可以眺望远处的华盛顿国家广场和其他的地标建筑,视觉上连接了参观者和周围的城市。
▲ 屋顶餐厅
▲ 展览空间
▲ 表演艺术中心
▲ 观景台
在设计和建造的过程中,建筑师,承包商和策展人强调了博物馆和所处地块之间偶然建立却时刻存在的联系。圣经博物馆于2017年(BIM培训)11月17号开放,博物馆所处的地点特殊,位于4号大街的文化轴线上,链接了华盛顿国家广场和其他主要的文化地标。圣经博物馆的建立进一步提升了城市中心的复兴,在城市快速变化的同时带来了拥有迷人历史的一角。
设(BIM教程)计图纸:
▲ 总平面图
▲地下层平面图
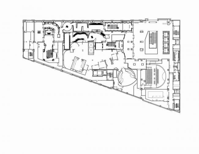
▲二层平面图
▲三层平面图
▲四层平面图
▲五层平面图
▲六层平面图
▲剖面图
项目信息:
设计方:SmithGroup
地址:400 4th St SW, 华盛顿,美国
类别:博物馆
主创建筑师:David Greenbaum, FAIA (SmithGroup)
建筑面积:430000.0 ft2
项目年份:2017
摄影师:Alan Karchmer,Alex Fradkin
厂家:Bendheim, Trimble, LV Wood, McNeel, Autodesk
设计团队:Sarah Ghorbanian, Assoc. AIA; Marcus Wilkes, AIA; William Jones, AIA; Don Posson, PE; Ionel Petrus, PE; Bettina Neudert Brown; Su Sie Lim; Cheryl Brown; Viral Amin, PE; Rodrigo Manriquez; Luke Renwick; Elisa Santoyo; Sara Lappano
历史保护:SmithGroup
MEP工程师:SmithGroup
灯光设计:SmithGroup
防火与人防:SmithGroup
客户:Museum of the Bible
景观设计:Michael Vergason Landscape Architects
结构工程师:Tadjer Cohen Edelson
历史资源:EHT Traceries
艺术家:Larry Kirkland
展览设计:Technomedia Solutions LLC

BIM建筑网


































