新田·印象——作为郑州新田置业超大型商业综合体项目,花费两年的时间,从产品定位到细节打磨,最终呈现出总建筑面积42万方,集购物中心、总部办公、星级酒店、平层公寓、LOFT公寓、城市公馆为一体的城市综合体。
效果展示
新田·印象商业中心南透视(效果图)
BIM教程新田·印象商业中心类住宅东南屋顶(BIM模型图)
新田·印象商业中心类住宅西南底商(BIM模型图)
新田·印象商业中心南立面BIM模型
BIM目标与价值
BIM应用落地与否,在于目标与价值的规划管理;新田项目在BIM应用的初期,经工作开展、组织了解及管理讨论,制定出精细化设计、精细化施工、精细化管理的目标战略;通过BIM技术融入设计、施工和管理,从而实现:提升设计质量、控制施工进度及造价、形成企业BIM标准和形成资产数字化等价值体系。
新田·印象商业中心项目BIM应用目标与价值
BIM助力方案设计
设计方案在初期推敲与研究上,多以外形和立面效果为主,BIM融入设计过程,在方案推敲上,结合立面和室内效果共同可视化设计意图,通过空间比选、方案比选、方案可行性验证、方案可视化等,助力业主决策或推进设计方案发展。
游泳池室内方案(空间方案)
游泳池外挑方案(空间方案)
商业中庭方案(空间方案)
下沉广场方案一(方案比选)
下沉广场方案二(方案比选)
BIM助力精装设计
精装设计主要论证精装效果、方案可行性和经济合理性;BIM融入精装设计,整合土建条件,配合一次机电及二次机电空间位置,完成精装细节设计与空间造型优化;运用BIM三维可视化技术,使得业主提前了解室内布局、清晰表达精装设计效果,同时输出精装工程量,助力业主全面了解精装设计;此外输出VR展示效果,使所需方在手机端便捷查阅。
新田·印象精装B户型(精装+机电+地BIM设计暖)
新田·印象精装B户型(卫生间)
新田·印象精装户型(工程量)
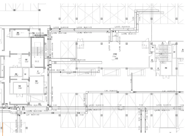
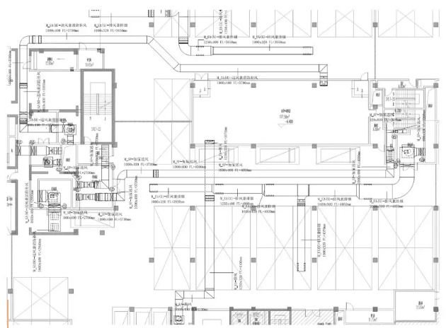
BIM助力机电管综及出图
机电管综在满足设计规范的基础上,同时需要考虑土建空间的合理利用,施工和维护空间的需求性,以及净高和后续装饰的需求;基于BIM技术的三维可视化管线综合,能够直观有效合理布置管线排布和空间需求;同时输出高质量施工图,助力业主和施工团队更加理解设计,使机电设计与建造更加精准、精细。
新田·印象地下室机电模型
新田·印象地下室机电管综模型(局部)
新田·印象地下室机电出图大样
新田·印象地下室电气专业模型出图
新田·印象地下室暖通专业模型出图
新田·印象地下室消防喷淋模型出图
BIM助力设计检查
基于BIM技术的设计合规性检查,在设计阶段随设计深度的推进,逐步完成各专业设计内容的合规性检查,提高施工图设计质量,减少后期设计变更,或变更较多引起的建造混乱不清等现象,间接节省时间成本与沟通成本,助力业主获取高质量施工图,辅助业主准确招标,减轻施工组织管理压力。
BIM工作数据分析
新田· 印象商业中心项目,对所发现和解决的问题按周做统计分析,从发现、协调、解决问题,到确保现场施工收到变更图纸,进行问题的销项追踪管理;避免设计调整未及时发到项目,造成项目参照旧图带来了拆改损失。同时了解施工进度,对老、旧、拖的问题组织专项协调会议,定时间、定责任方负责销项结项。

BIM建筑网





















