“和平馆”位于塞内加尔南部的塞久,是由巴鲁奥-萨罗协会发起的KAIRA LOORO国际建筑竞赛的中标方案。该组织的建筑师和工程师团队将与塞内加尔当局和机构对此获奖方案进行建造评估,研究其财务和技术可行性。项目将被置入一个特别微妙的城市环境中,基地为Casamance河沿岸一块平缓的粘土地。它是一处多功能场所,在这里可以举办永久和临时的艺术展览,分享和平与记忆的价值。
▲ 从城市道路角度观看建筑
▲ 总平面图
和平馆沉浸在周围的环境和自然景观中,一边是河流,另一边是城市,企图以简洁的体量融入基地,成为大地景观。轻轻踏上悬浮的基座,穿过窄而高的门洞,是一圈木结构柱廊围合的庭院。阳光从庭院上空照射进来,打在中间的木盒子上,人们可以在庭院中散步、交流、静坐,感受和平年代所拥有的家的安稳与宁静。庭院一方面提供了一处人与人沟通交流的空间,一方面也改善了建筑的微气候,增加室内通风效果。
▲ 庭院
从庭院穿过走廊,长长的走廊敏感地容纳着脚步的节奏,容纳着庭院的交流声。光线从夯土墙上的洞口照射进来,洒在走廊上,把人引向祈祷和沉思的区域。沿台阶而上,来到沉思空间,心情慢慢沉淀(BIM设计),酝酿出一种与沉思气氛合拍的情绪。
▲ 沉思区朝向河边
▲ 沉思区朝向走道
顺着两侧纵向排列的木结构柱子,视线向前延伸,两个展厅间狭窄且高长的缝隙让你可以看到外面的世界。但建筑之外的景色在你经过时,随着角度的变化又会慢慢暗淡最终逝去。它鼓励参观者反思并记住动乱的无情和它带来的压抑,以及因战争而陨落的鲜活生命,但最重要的是,展望和平美好的世界,展望未来。光线穿过檐口与夯土墙的空隙照射进来,打在墙壁上,增加了空间的静谧,这个区域的空间将和平的意义物质化。
▲ 走道
鉴于对塞久工艺的预判和对“和平馆”(BIM建筑)本身空间特性的理解,设计选用了夯土墙和木骨架结合的建造方式,并考虑利用当地的木材和夯土技术,创造出契合主题的质朴空间,由内层木构和外层夯土定义的两种空间界面在身体的知觉感受上截然不同,光线将两种材料融合在一起。
▲ 结构图解
▲ 通风图解
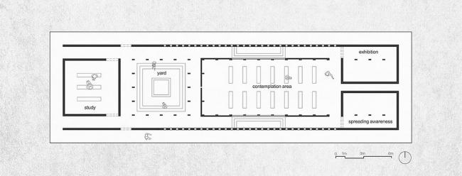
▲ 首层平面图
▲ 剖面图
项目信息:
项目名称:和平馆
位置:非洲 塞内加尔 塞久
建筑面积:300平方米
设计:蔡长泽
联系邮箱:[email protected]
工作单位:华南理工大学建筑设计研究院有限公司

BIM建筑网












