西部某高速铁路项目设计时速250km/h,横跨三省十一县,正线长度约515km,其中特大桥14座,特长隧道180座,总桥隧长度约405km,桥隧比81%,线路跨越中国西南山区的崇山峻岭,地形和地质条件都非常复杂,设计和施工难度很大。
作为一个高速铁路项目,面临的挑战包括:项目整体线路较长,在平面选线和路基横断面设计上的影响因素很多,工作量很大。与此同时,项目设计周期却相对较短,只有大约6个月,与同等规模的项目相比,只占其50%。项目中的一大挑战就是要在有限的项目设计周期内完成多个方案的比选,并生成高质量的横断面设计图纸,且业主期望以更为直观的方式获取设计最终效果。
基于以上项目挑战,项目负责人组建了一支BIM设计小组,将BIM技术应用于该项目,从而实现了专业之间数据的协同与共享,提高工程设计质量,为业主提供更为直观的交付方式。

本次三维设计首先运用基于三维GIS平台的空间选线系统,规划铁路的线路通道,为后续设计研究奠定基础。系统利用三维GIS平台,获取地形高程数据、影像数据及相关地理信息,直接进行铁路线路规划设计,并进行方案综合展示、构建沿线铁路三维场景及线路方案比选。


在线路规划完成后,设计人员将线路平、纵数据直接导入AutoCAD Civil 3D软件,并根据初步选定的装配,快速创建铁路路基三维模型。AutoCAD Civil 3D强大的参数化铁路路基建模和动态更新的特性帮助线路和路基专业设计人员高效率地完成了工作,通过对路线平纵断面的调整,可以实时地观察到路基模型的更新和土方量的变化。

由于线路穿越山区,地形起伏很大,因此横断面的变化也很多。在传统的设计手段下,这部分的工作通常需要花费大量时间和人力。一般来说,10km的路基横断面需要大约5天。利用AutoCAD Civil 3D的智能路基横断面部件,如条件判断部件等组成的装配可以很容易地应对横断面的变化。同时在AutoCAD Civil 3D中的横断面图纸和路基模型动态关联,任何对于线路平纵断面和路基装配的修改,都可以实时精确地反映到横断面图纸上。

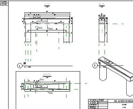
这就使设计人员可以集中精力在设计本身上。在本项目中,160km的铁路路基设计上,设计人员花了大约10天时间来研究横断面的坡度、挡土墙和排水沟等细部问题,而只用了一小部分时间修订图纸。在铁路桥梁设计方面,设计人员使用Autodesk Revit Structure建立了大量的参数化桥梁结构族库,并定制了相关的视图样板和明细表模板。根据测绘、地质、线路等基础数据,设计人员利用参数化的族库,拼装成三维桥梁模型之后,便可快速得到二维图纸和混凝土工程量。同时,借助Autodesk Revit的API,桥梁工程师还开发出了桥梁下部结构的参数化钢筋配置模块,为每一种不同类型的桥墩和桥台快速布置实体钢筋,以便于钢筋图的生成和钢筋数量的统计。




BIM建筑网


