此次改造设计是将基地原有日常教学教室改造为1971研学营地的学生住宿空间,在满足住宿功能需求的同时,不破坏旧时学堂的记忆成为此次设计的核心。
陈疃镇中学学堂最初由当地村民自发修建,就地取材,共同出资建造的而成。近几年由于各种因素现老建筑不能满足当下学校建设要求,被新中学代替所荒废。甲方依托政府打造一个综合性青少年学生研学教育营地并对现有的建筑群进行升级改造让其继续为学生服务。
原有建筑结构形式多为砖木结构,红砖屋身、木框架屋顶,上铺红瓦。为了更好的传承老建筑的历史纹脉,在改造中将红砖作为主要材料,沿用传统砌筑方法,将老建筑与新改造部分紧密融合在一起,使整个建筑群更加统一。
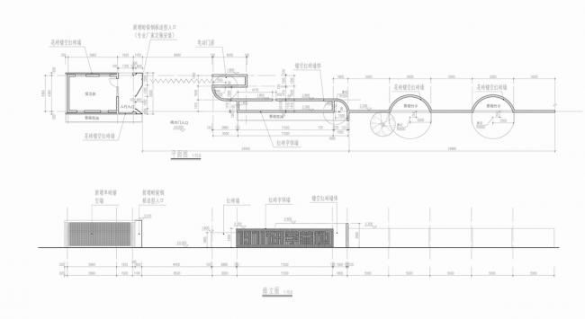
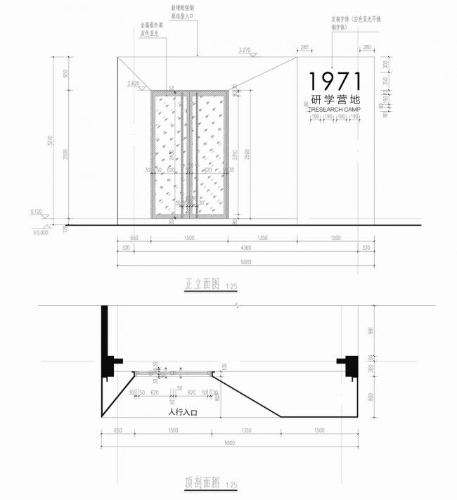
营地入口空间对原入口(BIM学习)拆除重新设计,打造一个独特景观入口空间,特有红砖砌筑 “1971研学营地”几个字代替了普通的金属字体张贴,让其与整个空间形成一个完整体。
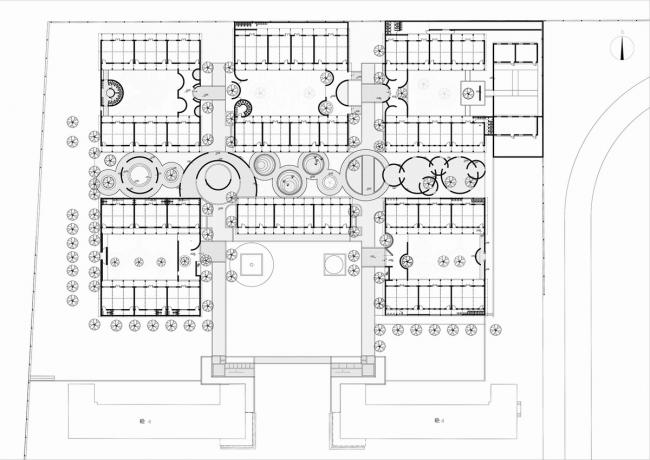
对原有红砖建筑群进行重新梳理,将破旧严重的小空间建筑进行拆除,保留主要建筑空间。
我们将保留的建筑空间重新组合,形成五个独立的院落空间和一个休闲趣味景观带,继续沿用红砖作为建造的主材料来整合空间氛围。在尊重建筑现状的基础上运用圆形元素配置每个庭院入口的专属空间,增加其趣味性和体验性。
景观带-我们用大小不一的圆将条形景观空间串联起来,形成三个不同(BIM工程师)的休闲趣味景观场所:西侧下沉式的篝火聚会场所、中间环形小丘小道、东侧圆形迷宫墙。
室内改造空间-原木框架屋顶改为钢结构并将增加高度,满足住宿空间的光照需求,提升空间亮度。
设计图纸:
▲ 红砖区总平面图
▲大门平面图立面图
▲门卫立面图
▲景观带
项目信息:
设计方:DK大可建筑设计
地址:陈疃镇文化路3号,东港区,日照,山东,中国
类别:更新项目
主创建筑师:杨攀
设计团队:高浩军 王学艺
业主:1971 研学营地
建筑面积:11050.0 平方米
项目年份:2019

BIM建筑网

























