这座建筑仅用了7层楼就达到了39.6米高的城市建筑高度限制。它最突出的特点是在南侧和西侧的倾斜状立面,它们被包裹在一个黑色的盒子里。这个黑盒结构被一排列整齐的柱子支撑起来,其中包括一个展览空间。这是一个浮动结构,为不同用途的组合创建了公共和私人空间。
大堂和零售设施位于底层带有夹层的的双高空间内,夹层是为学生和教师工作室提供的教育空间。大堂上面是博物馆的三个主要展区,展区的楼层高度可达6米,包括“特别展览”楼层、剧院、永久性展览和任务寻找区,还有一个未来的“间谍行动”空间。
一条悬浮在西立面金属板外侧的金属楼梯将这些楼层连接在一起,并将一个名为“面纱”的悬浮玻璃中庭围在中间。办公室在展览楼层的上方,这些空间上面是一些浮动的活动空间,它们被包裹在一个白色的盒子里,顶部有一个大的屋顶露台。
▲ 图解01
▲ 图解02
▲ 图解03
▲ 图解04
(BIM建筑)
▲ 图解05
活动空间中的钢结构让博物馆的跨度达到18米,落地窗围绕建筑布置了180度的跨度。这为欣赏华盛顿纪念碑、国会大厦、国家大教堂和大教堂、地区码头和国家港口提供了开阔的视野角度。
大型细长的结构钢梁从位于华盛顿特区主要混凝土建筑区域的 L'Enfant 广场方向上延伸,这种类型的建筑的钢结构与该区域的任何其他类型都不同。西立面上的玻璃幕墙像一颗闪亮的宝石从建筑物中突起,吸引着人们从第十街走向它。
设计图纸:
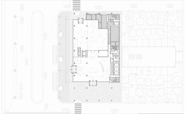
▲ 总平面图
▲ 底层平面图
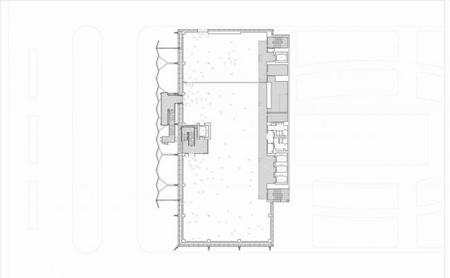
▲(BIM) 二层平面图
▲ 南立面图
▲ 北立面图
▲ 东立面图
▲ 西立面图
▲ 细部01
▲ 细部02
▲ 细部03
▲ 细部04
▲ 细部05
项目信息:
设计方:Rogers Stirk Harbour + Partners
地址:华盛顿特区,哥伦比亚特区,美国
类别:博物馆
建筑/首席设计师:Rogers Stirk Harbour + Partners
建筑面积:13,000平方米
项目年份:2019 年
摄影师:Nic Lehoux
厂家:Terrazzo & Marble
记录建筑师:Hickok Cole
客户:The Malrite Company
开发商:JGB Smith
结构工程师:SK+A Engineers
机电管道工程师:Vanderweil
景观设计顾问:Michael Vergason Landscape Architects
外观顾问专家:Eckersley O’Callaghan
照明设计顾问:Available Light

BIM建筑网



































