对于建筑一个重复出现的问题是:延续还是增加?对于由沃尔特·平泽在五十年代为保利香男爵夫人建设的位于保利宫的私人公园南部的度假小屋,我们决定在其建筑基础之上继续设计和建设,我们接手了已有的建筑,并带领他进入了二十一世纪的设计。
在建筑的东面,一个延续了度假屋的形式和主题的新增的小屋,我们亲切的称他为“茶室”。
这座类似展馆的小建筑不想否认其借鉴的日本风格的影响,但同时(BIM建筑)仍然尝试利用景观的形式和我们的生活文化。主楼中的圆形阳台重新诠释了厨房的圆拱元素,一个连接的露台保证了施工的概念方法而不是在此基础之上增加更多的结构。
作为一个独立的,有斜脊的屋顶的小屋,“茶室”用当代的方式重新诠释了典型的仰和瓦屋顶。但是房屋的主角还是景色,从葡萄园到卡尔特恩湖,白云石山脉或者孟德尔山的景色。保留已有的窗口,新的窗口对应到主题景色,当然这样的框架下没有一处的景色是一样的。
每个视角都有其自己的框架,每个景色都应该成为为居民框住景观的图片。在室内,典型的当地建材形成了一种特殊的氛围,木头,水磨石地面,石膏,和由艺术家曼弗雷德·阿尔瓦·迈尔构想的色彩概念都让这个房屋有了一种特殊的流动方式。
和房屋业主的对话确定了项目特点是要为他们自己设计房屋,因此该项目并不是一个旅游目的地的结构,更主要的是展现一个能够让克劳迪娅,莱因哈特和佛瑞恩能够接待客人并让他们觉得宾至如归的地方。
由景观生(BIM设计)态学家罗兰德·德拉吉科马设计的葱郁的花园,是一个感官丰富又安静的地方,两个游泳池确保了专有的印象,一个宽敞的车库,还有不可或缺的Kaltern地区的特色酒窖。这个有两个侧翼的壮丽的房屋使得男爵夫人的精神似乎仍然存在。
设计图纸:
▲ 总平面图
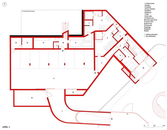
▲地下一层平面图
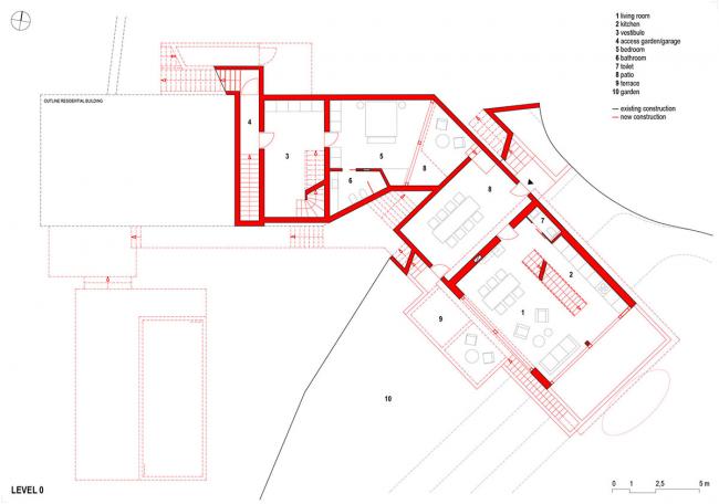
▲一层平面图
▲二层平面图
▲三层平面图
▲南立面图
▲东南立面
▲北立面图
▲剖面图A-A
▲剖面图B-B
▲剖面图C-C
▲剖面图-D-D
项目信息:
建筑事务所:Schiefer Tschöll Architektur,Walter Angonese
地址:Kaltern / Caldaro – South Tyrol – 意大利
类别:旅馆
主创建筑师:Walter Angonese with Schiefer Tschöll Architektur
项目年份:2017
摄影师:Jürgen Eheim
厂家:Flos, Bodenservice, Plank, Adobe, Autodesk, FiAM, Graphisoft, ROSSIN
业主:Family Reinhart und Claudia Volgger
合作方:Moritz Gaiser, Silvia Potente, Martin Trebo, Jacopo Vantini
艺术顾问:Manfred Alois Mayr
景观设计:Roland Dellagiacoma
工程师:Herbert Mair
顾问:Schweigkofler GmbH

BIM建筑网

































