油坊坪村隶属蓝田县九间房镇,与玉山隔灞水相望。地处秦岭北麓,七十二峪之流域。依群山相夹之势,附流域水畔。
村落地处山区,每年盛夏时节,在此聚集了大量周边市县前来避暑的人群,常日却鲜有问津。村内以留守人群为主,劳动力流失严重。
2017年,我院为响应国家扶贫攻坚工作,在西安市政府、蓝田县政府与中国建筑西北区域总部的共同带领下,以技术扶贫的方式,尝试探讨景观这一手法对于大秦岭地区乡土景观的传承与新解。
回归的理由——竹影人家起炊烟
村落内各类资源呈现单一、无序的组织方式,传统风貌和旅游资源亟待有效挖掘。究其原因,村域衰落问题的本质正是人的问题。缺乏回归的动力与就业机会是造成村落活力缺乏的诱因。因此,同时给予村民回归的理由与游客乡愁的记忆,成为了本次设计的初衷。
以回归的理由为契机,首先应提供文化传承与延续记忆的实物载体,即:可供聚集与交流的功能空间。设计以具有通透性的半室内场所,形成具有限定感的公共场所,并形成可以引导视线的观山界面。长亭立面以质朴的石材砌筑,植根于秦岭山间的原始与粗犷风貌。长亭一侧的扶梯则构成亭廊与田地的联系,形成忠于传统生活与劳作方式之间互通的空间结构。
空间的重塑——疏林外一点炊烟
原村委会广场是村落内唯一的开敞空间,但功能单一,几乎没有村民在此停留。且原有坡道存在极大的安全隐患。
设计中,将村域主入口的形象展示结合人群活动功能共同考虑,首先设置引导性挡墙,形成形象鲜明的入口空间,承接外来人流。并竖立村标,提供从各个方向均可轻易识别的村落标识。新建亭廊,为村民唠嗑的旧习提供更为舒适的空间。并以台阶结合树池化解原场地的陡坎。这一地形与亭廊的衔接,形成了变化丰富,参与性强的集约空间。另外,保留部分原场地的记忆,提供了更多的空间可能性。
▲ 晨炊
▲ 长亭
▲ 溪台
村标的设计来源于油坊坪村常见的烟囱,以“炊烟袅袅”的深山村落意向,呈现出一副典型的农耕文明乡风俚俗画,静的是百年老屋,动的是炊烟升腾,尤显薪火相传万家灯火,正是万古流传的宁静温馨的生活常态。
场地的新解——山回路转不见君
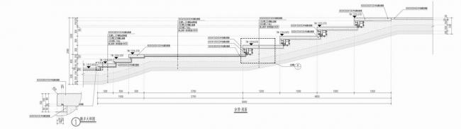
村落原有两条乡道之间的分流点高差较大,人行不便。故以曲折回廊的形式设计下行步道,使用与踏步相统一的护栏,在极度野生自然的语境下,置入一处利落稳健的现(BIM)代笔触。
山间幽径,以平台衔接一侧的山溪,形成具有差异化体验的人行步道和观景平台。山中生活,在途中偶遇一滩溪水,这种片刻的停留,是人与山之间最为平和真实的相处之道。
油坊坪村的探索与实践,其目的不仅仅是针对村落衰败现状而解决问题,更试图想以人文关怀乃至社会学的角度来解析村落文化与空间关系,并重塑符合文脉传承所需求的解答。
设计图纸:
▲ 总平面
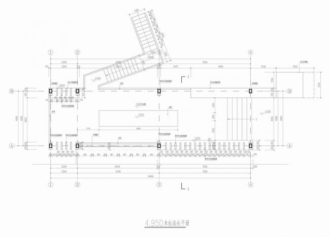
▲ 长亭平面
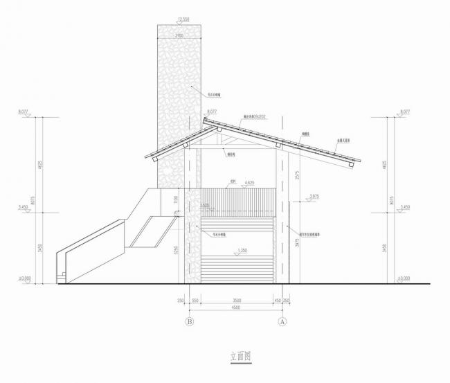
▲ 长亭立面
▲ 长亭立面
▲ 长亭立面
▲ 长亭分析
▲ 长亭模型
▲ 溪台平面
▲ 溪台立面
▲ 溪台立面
▲ 溪台剖面
▲ 溪台剖面
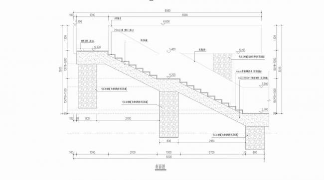
▲ 台阶剖面
▲ 溪台模型
项目信息:
景观设计:中国建筑西北设计研究院·建筑装饰与环境艺术工程设计研究院
地址:九间房镇,蓝(BIM教程)田县,西安市,中国
类别:景观设计
景观主创建筑师:佟阳
景观设计团队:夏飞、刘钰昀、任紫嫣、李佳阳、赵晓静、邹林谕、张艺馨、郭文昊、王洁珏、程璇、吴雨尧、赵强、巩得强、雷思聪、白东昊、武越、闫更、杨建飞
建筑面积:5000.0 平方米
项目年份:2017
摄影师:叁山影像、PM视觉系、佟阳
其他专业团队:徐敬凯、车顺利(结构)、刘锋(结构)、刘涛(结构)、王晨(机电)
景观深化团队:建筑装饰与环境艺术工程设计研究院-艺术工作室
景观施工:中国建筑第八工程局有限公司
项目业主:西安市政府、中国建筑西北区域总部(中建丝路投资集团)

BIM建筑网



































