位于班加罗尔的凹凸住宅(RL Residence)占地240平方米。它的两侧是从东到北的建筑物,而在西到南侧面对着两条街道。这是一个为企业家和他的孩子、中年亲戚和老年家庭成员设计的家。简而言之,包括一系列的空间组合,以应对不同程度的隐私——包括三间卧室、半私人家庭休息室和多用途娱乐和聚会区。
这些内部关系是通过空间的排列而形成的。在北边和东边有楼梯、电梯、服务区和私人书房,形成一个十分隐蔽的楔形,朝向邻(BIM)居。居住区和卧室区占据核心,并随着悬臂延伸向街道。为了满足客户的所有要求,项目垂直堆放在四个紧凑的楼层上。地面和屋顶的水平面是基本开放的,足够灵活,可以用于各种用途,包括游戏、会客、活动和烧烤。一楼的私人电梯房直接通向第二层和第三层。
为了将形体从程序化的紧绷中解放出来,凹凸住宅的正面有着不同高度和深度的凹凸。凹处通过铰链固定窗户、阳台和其他与外部的连接。这里的颜料与覆盖着大楼其他部分的哑白色形成鲜明对比。抛光石膏,铜层压板,钢和夹层玻璃一起形成了各种纹理和效果。然而,凹凸住宅内部的颜色和风格与外部是不同的。一系列的材料的质感在内部被表达为大理石、木材、玻璃、漆器和织物之间微妙地从地板到天花板的过渡。
设计图纸:
▲一层平面图
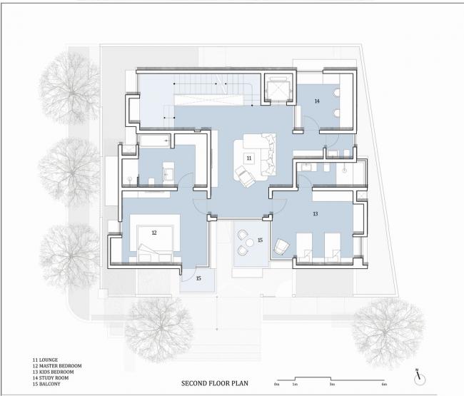
▲二层平面图
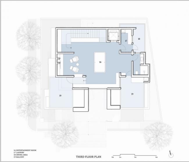
▲三层平面图
▲四层平面图
▲立剖面图
项目信息:
建筑师:SDeG
地址:班加罗尔,印度
类别:独立住宅
主持设计师:Sujit Nair
项目团队:Sujit Nair, Shantosh(BIM培训) C,Aayush Bhaskar, Bidisha Kumar,Saurabh, Sukirti,Suchetna
建筑面积:6210.0 ft2
项目年份:2018
摄影师:Shamanth Patil
厂家:Gessi, Aluk, Schneider, Armourcoat, Laufen, FunderMax, Valcucine, George Johnson Lifts
结构顾问:Eco Consultants
电器顾问:PK Consultants
合同商:Rashmi Constructions

BIM建筑网

















