装配式剪力墙结构是由预制构件通过可靠的连接方式并与现场后浇混凝土、水泥基灌浆料形成的整体结构,可靠的连接节点是保证结构整体性和抗震能力的关键。节点连接主要有梁与柱连接、柱与柱连接、墙与墙水平和竖向连接等。
装配式剪力墙结构竖向连接方式有两种:
1、干式连接就是在施工现场无需浇筑混凝土,全部预制构件、预埋件、连接件都在工厂预制,通过螺栓或焊接等方式实现连接。
2、湿式连接就是将两个承重构件之间钢筋互相连接后通过浇筑节点实现结构的整体连接,以达到节点等同现浇。
目前,国内使用较多的方式是湿式连接。湿式连接主要包括现浇带连接、灌浆套筒连接、浆锚连接。
1.现浇带连接
现浇带连接是在预制剪力墙安装于设计位置后,在要连接的上下层剪力墙之间设置现浇带,然后将预留钢筋通过搭接方式连接,剪力墙安装就位后浇筑混凝土成为一个整体。
特点:上层剪力墙的位置不好固定,现浇带顶面的混凝土浇筑密实程度不够。
2.浆锚连接
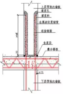
浆锚连接就是将预制构件的受力钢筋插入所连接的预制构件对应位置的预留孔道内,再将高强度无收缩灌浆料灌入钢筋与孔道内壁之间填充,以起到锚固钢筋的作用。
常用的浆锚连接形式有螺旋箍筋约束浆锚连接和金属波纹管浆锚连接。
螺旋箍筋约束浆锚连接示意图
特点:机械性能稳定、操作简单、易于填充带肋钢筋间隙,适合竖向钢筋连接。
金属波纹管浆锚连接示意图
内墙版
外墙版
实景图
3.套筒灌浆连接
套筒灌浆连接就是将预留钢筋插入带有凹凸槽的高强度套筒内进行连接,然后在钢筋与套筒内腔之间注入无收缩、高强度灌浆料,形成钢筋套筒灌浆连接。
常用的套筒灌浆连接形式有全套筒灌浆连接(水平构件)和半套筒灌浆连接(竖向构件)。
半套筒灌浆连接示意图
特点:套筒灌浆强度相当于钢筋强度,可将其视为一根钢筋,力学性能稳定可靠、工期短、连接操作方便。
干式连接包括螺栓连接、后张预应力连接、机械连接、焊接连接、搭接连接。
优点:简化装配工艺,大程度缩短施工工期,减少现场施工人员,易保证施工质量,节能环保。
缺点:连接部位有防腐、耐火的要求。
1.螺栓连接
采用螺栓的方式将柱与柱、 梁与梁、梁与柱等结构构件紧固连接在一起的方式。 螺栓连接可以在构件边缘设置螺栓孔和安装手孔,螺栓穿过螺栓孔实现紧固连接。
螺栓连接示意图
特点:工期短,操作简单,适用于预制构件之间的连接,对预制构件具有良好的承载力、刚度、抗剪能力及耗能能力,是一种可靠的连接方式。
2.后张预应力连接
在浇筑混凝土前将预制剪力墙内按预应力筋的位置先留出孔道,待混凝土达到规定强度后,将下层预制剪力墙预应力筋穿入预留孔道到上层预制剪力墙顶端,然后用锚具将预应力筋锚固在端部,最后在孔道内注入高强度灌浆料,使上、下层剪力墙连接成一个整体。
后张预应力连接示意图
特点:抗震能力强,提高构件结合面的摩擦剪切强度。
3.焊接连接
通过焊接混凝土构件中预埋钢板连接件实现连接。
焊接连接示意图
特点:电弧焊成本低,操作简单方便,适用范围广,受力性能更好。
4.机械连接
通过钢筋与连接件的机械咬合作用使两根钢筋连接在一起。常用的钢筋机械接头有挤压套筒接头、锥螺纹套筒接头和直螺纹套筒接头。
套筒挤压连接示意图
1-已挤压的钢筋;2-钢套筒;3-未挤压的钢筋
锥螺纹套筒连接示意图
1-已连接钢筋;2-锥螺纹套筒;3-未连接钢筋
直螺纹套筒连接示意图
1-待接钢筋;2-套筒
特点:机械连接可靠性较焊接要好,成本较低、使用范围广,操作也较简单,适用于大直径钢筋连接。
5.搭接连接
主要用在边缘构件伸出的预留拉结筋与箍筋连接,采用铁丝绑扎,然后在箍筋内配置竖向插筋,后浇筑混凝土形成暗柱完成预制构件竖BIM建筑向连接。
搭接连接示意图
剪力墙竖向钢筋连接
连接钢筋
特点:搭接连接具有施工方便、不受外界因素影响的优势,并且装配式房屋对工人的技术要求不高,适用于较小直径的钢筋连接。

BIM建筑网














