近二十年来,高速发展的医院建设缓解了长期以来我国医疗资源的匮乏状况,但是建筑质量差、寿命短、空间环境品质不高、改造难度大、运营能耗高、维护困难等现象还普遍存在。随着社会经济和医疗技术水平的不断提升,医院建筑需要为患者和医护人员提供更加健康、友好、人性化的空间,粗放式的医院建设应该逐步向精细化、集约化的方向发展。
更新医院建筑设计理念,建造更加人性化的医院建筑,实现医院建设行业的转型发展,成为时代发展的需求。
01可持续发展是医院建筑的人性化内核
医院建筑的人性化不仅为了满足当前医院使用者的需求,同时还要为将来的发展留有余地,实现建筑全生命期的可持续发展。
可持续发展是医院建筑的人性化内核,大力推行可持续的设计理念,将推动医院建筑人性化目标的实现,主要体现在三个方面:
建筑长寿。人性化的医院建筑设计应秉承可持续发展的理念,考虑全生命期内的功能可变性和设备管线检修更换的便捷性,实现建筑寿命长久。
品质优良。选用健康环保、品质优良、通用适老、易于更换维修的部品部件,从主体结构、设备管线、内装部品等各方面提高建筑工程质量,实现医院建筑品质的全面提升。
绿色低碳。在建筑全生命周期内,在保证医疗流程的前提下,以被动式设计为基础,主动式技术为补充,最大限度地节约资源、保护环境,减少污染,减少碳排放,为患者和医护工作者提供健康、适用、高效的空间,达到人、建筑与自然和谐共生的可持续发展目标。
02装配式设计推动医院建筑的可持续发展
2016年的国办发71号文提出了“大力发展装配式建筑的指导意见”,发展装配式建筑成为建筑行业转型升级,走以科技引领道路的有力推手。
装配式建筑遵循建筑全生命周期的可持续性原则,强调标准化设计、工厂化生产、装配化施工、一体化装修、信息化管理和智能化应用。通过工业化生产的优势提升效率和建筑品质,通过弹性化的设计满足需求变化,注重使用空间的可变性和持续更新的可能性,延长建筑寿命,从而避免资源浪费,减少对生态环境的破坏,实现绿色低碳、可持续发展。
目前大多数的医院都面临着边使用边维修改造的问题,减少维修改造对正常医疗工作的影响最能体现建筑设计的人性化。装配式建筑的特征契合了现代医院建筑人性化、可持续发展的需求。装配式建筑引导支撑体(结构系统)和填充体(外围护系统、设备与管线系统和内装系统)分离(图1),采用大空间的布局形式,集中布置交通核及设备管井,使功能空间弹性可变;利用轻质隔墙系统、整体卫浴等弹性设计手段,实现医疗空间的无缝拆改和更新,实现建筑长寿化;工业化生产可以有效保证部品部件的品质;现场施工的周期短、噪音小、污染小,将对正常的医疗工作影响降到最小;设备管线与主体结构进行分离,便于检修和更新,也减少了对医疗工作的影响。
因此,将装配式建筑设计理念运用于医院建筑的设计和建造中,其人性化理念和可持续发展观将引导着未来医院建筑更加长效、高质和绿色。
03 人性化的装配式建筑设计理念
医院建筑的人性化除了对患者和医护人员的情感关怀之外,更体现在医院的建造和运行管理的全过程中,提高建造效率、提升建筑品质、减少环境的污染是最大的人性化体现。
装配式建筑通过全专业的一体化设计和设计、生产、建造、运维的一体化管理,追求品质更佳、成本更优、工期更短,实现项目整体效益最大化。实现一体化设计和一体化管理的基础就是贯穿项目全过程的标准化设计和信息化管理。
标准化设计
装配式建筑设计倡导的标准化设计体现了人性化的理念。标准化设计利于部品部件工厂化批量生产,使得现场施工更便捷,环境污染和能源消耗更低,也将对医院日常运行的干扰降到了最小,体现了以人为本。
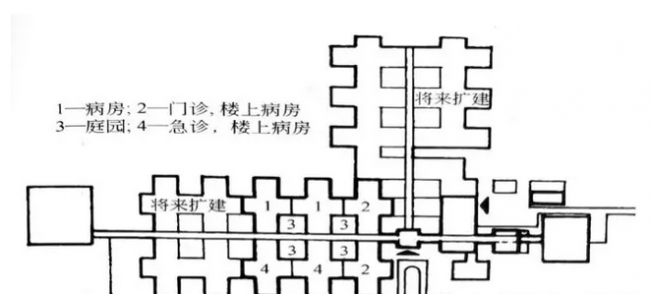
标准化设计的同时,强调以“少规格、多组合”为原则,来实现建筑的多样化,也就创造出了丰富多彩的人性化建筑。实现标准化主要途径是通过模数和模数协调、模块和模块组合。模数和模数协调是所有建筑设计的基础工作。而模块化设计是建立在建筑功能分区的基础上,将相同属性的分区划入同一个空间体系中,再根据功能要求将模块组合在一起。对于现代医院建筑来说,模块的概念并不陌生,为适应现代医学发展和大型医院的建设需求,20世纪70年代英国的Nucleus设计体系就已经出现[4],采用了十字装配式住宅型模块单元(图2、图3)。门诊、医技、住院等功能均可以进行模块化设计,形成大空间的模块单元,通过医疗主街将模块单元进行连接组合,就形成了有机的医院建筑形式,而通过模块单元的更替可实现预留发展和功能更新(图4)。在标准化的门诊单元或者护理单元中,同样可以按照模块化原理进行细分,分解为诊室、办公、交通核、卫生间、走廊等不同模块,而模块组合后形成门诊单元或护理单元(图5)。
信息化管理
提升医院的建造和运行的工作效率是从另一个角度实现人性化。而装配式建筑力求通过BIM技术在全生命周期内实现建筑信息的有效协作和共享,提高建筑的建造和运行效率。例如在运行过程中,利用BIM信息能够快速发现隐蔽工程中设备管线的问题或者实现部件部品信息的可追溯,帮助准确解决问题,提升运维水平。
04 建筑系统集成设计
区别于传统建筑,装配式建筑如同汽车、手机等工业产品一样,是一种由结构系统、外围护系统、设备管线系统和内装系统等四大系统集成的建筑产品(图6)。而品质优良、运行良好、绿色环保的建筑产品就是以人为本的具体体现。装配式建筑设计就是通过系统集成,解决好四大系统之间和系统内部的协同问题,,使建筑成为人性化的产品。
结构系统
装配式建筑结构系统主要有装配式混凝土结构、钢结构以及木结构等三种形式,国内以前两者居多。装配式混凝土结构的梁、柱、楼板、楼梯,钢结构的梁、柱、楼梯等均可以在工厂生产(图7),较传统现浇结构建筑相比,现场施工周期短,效率更高,满足医院建设需求。尤其针对改扩建项目,最大化减少了对医疗工作正常运营的影响,满足人性化的需要。
由于弹性化功能空间和门诊病房标准化程度高等特征,最适宜医院建筑的的结构体系为装配式混凝土框架结构、装配式混凝土框架剪力墙结构和钢框架结构、钢框架支撑结构等(图8)。其中框架-剪力墙结构或混凝土框架-钢支撑结构能够抵抗更大的地震作用,适用于高度较高的医院建筑。
钢结构是非常适合医院建筑的结构形式。钢结构跨度大、灵活性高、可改性强,能够提供可变大空间。钢材强度高,在同等承载力条件下,竖向构件截面小,可提高空间使用率。钢材延性好,耗能能力强,抗震性能好,可适用于9度区的医院建筑。钢结构构件符合标准化设计、工厂化生产的要求,工业化程度高,运输距离约束小,施工现场环境影响小(图9)。钢材可循环利用,材料回收率高,符合可持续发展要求。一般来说,在多层医院建筑中可采用钢框架结构,高层的病房楼可采用钢框架-支撑结构体系。
外围护系统
装配式建筑外围护系统由建筑外墙、屋面、外门窗等组成,集防火、保温、防水、装饰等多功能为一体。装配式建筑利用集成化、工业化的优势,解决围护系统的性能、美观和围护要求,质量更加可控,保证建筑安全,提升建筑耐久性,也是可持续发展、人性化的体现。
根据不同的项目要求和结构形式,可以选择适宜的外围护系统,如预制外墙、现场组装骨架外墙、建筑幕墙等类型。
内装系统
内装系统由楼地面、墙面、轻质隔墙、吊顶、内门窗、厨房和卫生间等组成。在医院建筑中,内装系统是最容易被患者和医生感受到的部分,可以直接反映医院建筑的人性化设计水平。
坚持可持续发展的设计理念,装配式建筑的内装系统与结构系统、外围护系统、设备管线系统进行一体化设计,统筹考虑施工建造、维护使用和改扩建等全生命周期的需求。
工厂生产的装配式内装部品,最大限度地保证材料的环保性和产品质量。现场干法施工,快速便捷,降低了水泥的用量,也降低对环境的污染。
内装系统可采用工厂生产的集成化部品进行装配式装修,如集成吊顶、集成隔墙、集成地面、集成卫浴、集成医疗家具、整体收纳等等(图10)。工业化的内装部品具有一定的互换性和通用性,便于更新,易于维护管理和检修一体化装修更换,也可以快速实现医院内部空间的改变。
医院建筑的弹性化空间分隔时,可采用轻质条板类、轻钢龙骨类、木骨架组合墙体类等装配内隔墙系统,可以现场快速安装及改造,不会产生大量的建筑垃圾。并且可利用隔墙系统的空腔,集成解决设备管线布置,便于检修维护。
病房内的卫生间可选用集成卫浴产品,材料环保绿色健康,品质优良。完全采用干法作业安装,配置采用防水底盘、检修口等部品,可以有效杜绝卫生间漏水,预留的检修口使后期维护十分便捷。
因此,人性化的装配式内装系统非常适用医院建筑建设的需要。
设备与管线系统
在传统建造方式中,通常将设备管线预埋在现浇混凝土结构中,使用寿命10~20年的设备管线与设计寿命50年甚至更长的主体结构被混合建造在一起。当设备管线老化时,预埋在结构中的设备管线更难以改造更新。检修更换管线要剔凿建筑主体结构,甚至干脆拆除重建,这都严重影响了正常使用,缩短了建筑寿命。因此,装配式建筑要求设备管线与主体结构系统分离,将设备管线布置在隔墙或装饰面层的龙骨间(图11),而不是埋在楼板和剪力墙里面,待管线检修时不需要通过剔凿的方式,就可以实现快速维修更换,也使建筑更耐久。
另外,医院建筑可将设备管线系统集中布置,减少与医疗功能区的交织和冲突。一方面,减少设备管线检修时对医疗活动和患者休息的干扰,使医疗空间更加人性化;另一方面使得功能空间更完整独立,成为弹性化空间,为今后的改造提供可能性。如在某医院(图12)的平面设计时,我们将设备管井布置在医疗功能单元外侧的公共区域,使功能空间弹性最大化,便于医院的可持续发展。
结语
无论医疗技术如何更新发展,满足人性化的需求始终是建筑设计最重要的问题,医院建筑设计如何体现人性化呢?装配式建筑可以为我们做出解答,可以像汽车或者智能手机一样,使建筑成为一个完整的产品,品质优良、精准细致、绿色高效、可持续发展,这些都是医院建筑人性化的重要体现。装配式建筑是建造方式的改变,更是设计理念的升级,人性化的装配式建筑设计理念将加快医院建设方式的转变,建立符合工业化要求的医院建筑体系和部品部件体系,建造长寿命高品质的绿色低碳医院,将推动现代医院建筑迈向可持续发展之路。

BIM建筑网













