皇家图书馆是哥本哈根滨水最重要的标志性建筑之一。表面覆盖着黑色花岗岩,线条简洁利落、立面闪闪发亮,被世人誉为“黑钻石”,是哥本哈根的建筑瑰宝之一。
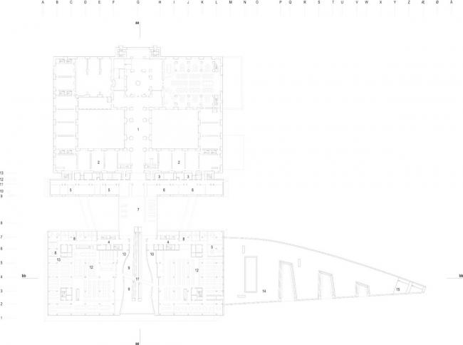
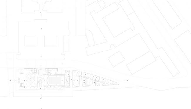
项目位于哥本哈根历史悠久的中心城区,扩建工程将原有的传统图书馆彻底转换为新型开放式文化建筑。建筑开放,而且本质上是民主的,包括咖啡厅、书店、展厅、餐厅、科学和图书中心、屋顶露台和可容纳600人的音乐厅,可举办音乐会、戏剧表演和会议。扩建后的图书馆总体规模扩大了一倍,开放书架可容纳超过20万册图书,而之前的容量为4.5万册。共有六个阅览室,486个座位。
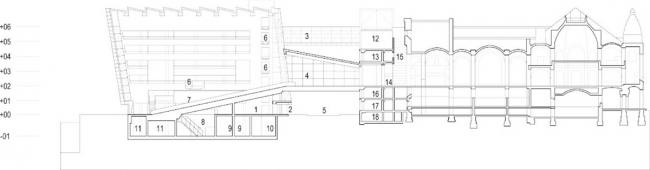
新图书馆有七层和一个地下室。实心的黑色立方体被一个巨大的玻璃中庭一分为二,中庭容纳了大部分公共功能。这个中心空间,可以欣赏滨水的全景,也作为一个重要的日光来源,分散到整个建筑中。
所用的建筑材料很少——石头、钢材、玻璃、木材和混凝土。柱子和墙壁是光滑的,在现场用丝绸亚光、彩色混凝土浇筑而成。石头、钢铁、玻璃和木材“自然”地保留下来,以反映建筑的简单性和逻辑性。材料的微妙颜色为房间提供了一个中性的背景,以配合建筑中进行的活动。
艺术是图书馆建筑的组成部分。五位艺术家的作品分别点缀在出借区的桥上、女皇大厅、鱼和Søren Kierkegaards广场。这些作品是对场所和房间特殊性质的诠释。
建筑细节:
设计图纸:
项目信息:
建筑师
SHL
地址
哥本哈根,丹麦
类别
图书馆
建筑面积
21000.0 平方米
项目年份
1999
摄(BIM建筑)影师
Adam Mørk
厂家
Falcon Lifts
景观设计
Schmidt Hammer Lassen Architects
工程师
Moe & Brødsgaard
声学设计
Anders Gade
客户
Danish Ministry of Culture
面积
7000 平方米
微信公众号:xuebim
关注建筑行业BIM发展、研究建筑新技术,汇集建筑前沿信息!
← 微信扫一扫,关注我们+

BIM建筑网



























