甦屋计划是香港善导会发起和管理的住宿服务,对象为更生人士,目的在于给他们重投社会时有一个过度居所, 同时间也可以提供他们生活上的关怀与帮助。
何谓更生人士呢?更生人士是指那些刑满出来, 已经改过自身,要重投社会的人, 我们以前叫释囚, 由于可能有负面的印象, 所以从2000年起, 香港惩教局统一改称更生人士, 并成立善导会提供辅导协助。
在项目开始前, 我们做了一些调研的工作, 包括去看现有低收入人士的居住环境( 一般是住在公共房屋或劏房)和更生人士的生活状态, 我们总结了几个重点, 用来考虑如何在设计时切入或提升。
1) 一般劏房单间大小平均9.5平米左右, 如果是群住的房型(8-10人一间的话), 人均面积才5.7平米, 在香港约有19.5万人生活在这些空间中。
2) 群住房一般以上下床为单元,有些待业的住客会长期休息在床上, 因为没有客厅或饭厅。
3) 群住客一般为单身或离异人士, 他们一般不做饭, 厨房使用率很低(除了冰箱)。
4) 储物空间只在自己的床上, 一般为层板或自己的小箱子。
5)8-10人共用一个卫生间, 在早上上班时间或晚上轮候时间长。
入口
除了以上几点, 甦屋的选址上也遇到不少的困难,香港善导会在联络一些愿意给我们改造的业主时, 他们非常担心住客会不会捣乱或邻居会害怕, 尽管这项目上会有改造的补贴和义务的设计。经过几次的选址, 我们在九龙油麻地找到第一个甦屋的试点, 一栋70年代的唐楼, 一个约40平米不到的户型。如何使住客拥有私密性但又保持与同屋的交流? 如何在有限的空间中发挥最大的使用效率?这是我们关注的重点。
项目改造前
原有平面
原址在改造前也是作为普通的劏房, 业主利用木隔断分出四个小房, 采光非常不好而且没有通风。
项目改造前
项目改造过程
在平面布局上, 我们思考了几个重点:
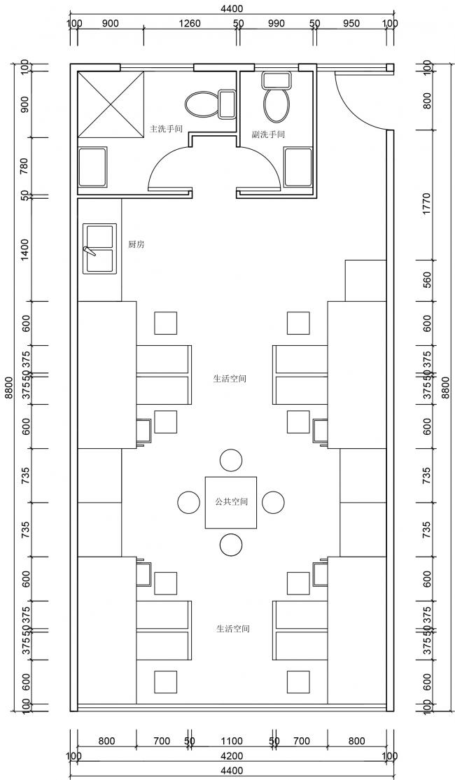
1) 以上下床家具为单元, 利用四组提供八人床位。上下床设计不只是床板和框架, 在床朝外的位置, 我们设计了隔板。在每组床边附加一个T型的竖板,形成两个带书桌的空间。 这样他们在同一空间也不会感觉到对方的干扰, 既保持隐私但又不会感觉和同屋隔离太远。
上下床单元
上下床单元
上下床单元
轴测图
2) 四个上下床分两组靠两边墙体平行摆放, 一方面可以保持通风, 另一方面形成中间的交流空间(饭厅)
公共区域(饭厅)
3) 原厨房位置改成开放式设计, 既可以节省空间, 又可以成为另一个增加住客互动的区域。
开放厨房
4) 厨房修改后多出来的空间我们增加了一个卫生间, 他们可以减少许多等待卫生间的时间, 我们没有配备洗衣机, 所以卫生间的使用率会相对提高。
卫生间
5) 储物空间设立在上下床单元之间, 增加他们的私人空间。
上下床组合
在有限的经费与近七个月的改造后, 甦屋终于迎来第一批住客。 我们通过设计, 可以为这些弱小群体获得更有尊严的生活, 使他们在新的环境下重新思考自己的未来。
公共区域
甦屋的甦字, 就是更生的意思。
阅读空间
项目图纸:
平面图(BIM工程师)
上下(BIM建筑)床设计
上下床设计
上下床设计单元
上下床设计研究
轴测图
轴测图
轴测图
轴测图
项目信息:
项目业主:香港善导会,Dr. Bill Chau
项目地址:香港九龙油麻地新填地街194号5楼
项目面积:38平方米
建筑师:冯国安,李四周
建筑事务所:间外建筑工作室
摄影:白羽

BIM建筑网


























