本次项目是仁川都市城组织的“木材博物馆竞赛”的一等奖方案,该建筑位于仁川大公园,由韩国林业局出资建设。博物馆起名为“MOKYEONRI”,意思是不同树种之间的和谐统一,而树种的分类也进一步界定出博物馆内部的空间体验,用于感知木材的不同属性。
韩国林业局出资建造的已有木材博物馆项目被统称为“传统木材详解的典型模式”,也就是说,这类博物馆通常都是全木制的建筑,并且内部只用来展示木材的相关知识。因此,让这样的木材博物馆引起游客的兴趣,甚至促进木材文化的发展就显得有些“强人所难”。
本次项目则与现有的木材博物馆不同,它更强调什么样的建筑手段能够让游客参与其中进行体验,而不是干巴巴地观看展品。于是建筑本身就成为了一个木材体验的巨大展品,在那里我们可以通过“观、闻、听、触”这四种方式感知建筑环境,从时间和空间上与外部的森林短暂地融为一体。
该建筑的设计策略是在仁川大公园创建一座具有象征意义的树木园,用森林式的空间感知树木。该项目将建筑抽象化,环境墙(交互式木制品构件)上的树叶随风摇摆,穿过叶子的阳光也会随之变化。这使得游客能够在不同的建筑楼层内对木材产生多重感官体验,直观地告知游客森林在每小时中发生的变化。
环境墙(高4米,长30米)通过反映人类活动和建筑物周围微气候的参数创建实时环境。这有助于人与建筑之间的互动和内外空间之间的交流。我们可以通过环境墙(即情景建筑)在这个空间中生成的实时情况来扩展空间体验。
空间体验的创新性可以促进对木材的新意识和文化性。通过这座建筑,我们触摸到了对木头和大自然的想象,进而给予我们生活中的灵感。
图纸
总平面图1
总平面图2
一层平面图
二层平面图
南立面图
东北立面
西立面
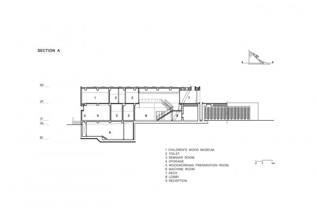
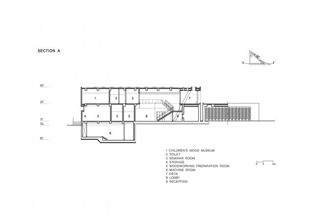
剖面图A
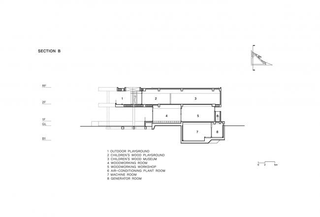
剖面图B
结构示意
项目信息
建筑设计:softarchitecturelab
项目区位:韩国,仁川
项目类型:博物馆
负责建筑师:Eunju Han
建筑面积:1173.0平方米
项目时间:2017年
项目摄影:Kyungsub Shin

BIM建筑网










































