Gustavo Penna事务所在各类项目中有着长达四十余年的作品累积,2015年年底的时候受到巴西安贝夫非营利组织Zerrenner基金会的委托设计了第二座学校。该新建学校位于塞蒂拉瓜斯,距贝洛哈里桑塔约70公里。
学校建在城市郊区科尼里奥大道旁的一大片土地上,背景是绵延的圣赫勒拿山脉。地块及其周围环境均属于农村地区,目前的居住人口主要为低收入人群。居民已有的生活状态短期内无法改变,但是所处的环境正在发生积极的转变,转变的部分原因是新建的教育、体育和文化综合体建筑。这种变革能力背后的支撑理念是不同活动的和谐共存。从这个意义上讲,本次学校项目非常重要,它在形态上设计成巨大的单体形式,“仿佛在欢迎和邀请人们前来,”Penna说道。
从大道上看,整个建筑群以一个巨大曲线门廊为主体,展现出张开双臂的环抱姿态。该体量由金属结构和矿物涂层板构成,立面与大道平行延伸,指示出入口,并在内部连接主体量。两个二级通道在地块边缘的停车场,服务于机构员工。装卸区也位于停车区内。
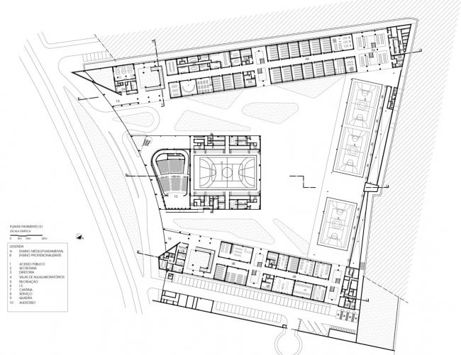
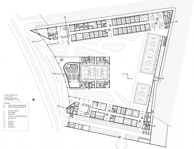
综合楼由3座建筑组成,南侧是小学和中学,北侧为技术学校。中心是礼堂和体育馆,实现外部和内部功能。体量的分布充分尊重南北向,有利于教育功能空间的利用。此外,它的空(BIM设计)心形式有助于季风的穿过,用于热舒适性的保持。整个工程设计规范合理,便于施工且施工效率更高。
学校操场的中心有一个大广场把三个体量连在一起。大广场同时还把不同的用途集合在一起:其中广场的南北边缘是公共区域,而东侧和西侧则安装了各类体育设施。广场中的景观元素又进一步细分了不同的使用区域。广场中有一座钟塔和水塔合二为一的建筑仿佛是整个空间的一座王冠,创造了一种强烈的形象元素,是学校和城市的参照点。
小学和中学所在的体量与“A”字街平行,均为两层高的建筑。首层平面中设置的大阳台打开了多种生活和使用的可能性,广场上的景观通过这片阳台得以延续。
大片的底层架空柱通过大量的绿色垂直核进行点缀,为建筑的各个部分形成直接而清晰的出入口指示。沿着这些元素分布的是服务空间、教学区域和专项科目教室。餐厅开放区位于第一个体量的尽头,作为其与开放式运动场之间的枢纽。二楼是教室(每个教室可容纳32到40名学生)和后勤设备区。
第二个体量位于北部,由技术教育区组成;它垂直于Valadares教授大道,有与小学部体量类似的功能和正式配置。一楼是图书馆和整个行政部门的所在地。二楼有10间教室(每班35名学生)和后勤设备区。
第三个和中央体量内是礼堂和健身房。它的造型更为庄重,更具纪念意义,其作为学校的门面主要面向外部人员打开。它可以独立招待学校外(BIM学习)的访客。从Cornelio Viana大道可以看到礼堂大厅。人们从这个宽敞的空间可以进入600座的礼堂和夹层空间。咖啡馆位于夹层,其作为额外的生活空间欢迎访客来此稍作休息。
这座建筑的后方有一个能容纳1000人的健身房。其后立面正对着中央广场,由大型滑动门组成,在内部和外部之间形成自然连接。该立面上还有一个临时舞台,扩大了使用这些空间的可能性。室内通过入口顶部的热空气出口进行通风。外立面上统一安装的水平金属百叶不但增强了建筑统一感和连续性,还有助于通过遮蔽和风传导的方式降低室内温度。
总建筑面积约为19000平方米,占用率约为该地块总面积的35%。空心的方案设计解放了8000多平方米的绿化面积,另外非建筑面积和设备面积达7000多平方米。全校学生人数达到2500人以上。礼堂可容纳450人,健身房可容纳1000人。
图纸
总平面图
一层平面图
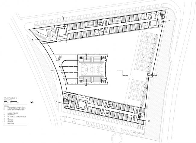
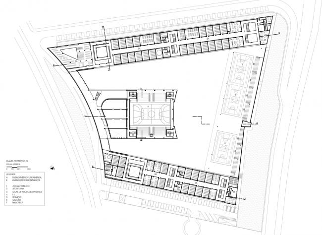
二层平面图
立面图
剖面图
大样图1
大样图2
项目信息
建筑设计:Gustavo Penna Arquiteto e Associados
项目区位:巴西,塞蒂拉瓜斯
项目类型:可持续节能建筑
建筑面积:25808.0平方米
项目时间:2016年
项目摄影:Jomar Bragança
管理及规划:Risia Botrel Isabela Tolentino Taimara Araújo
市场运营:Diana Penna Tamiris Bibbó
景观设计:Flávia D’Urso Paisagismo

BIM建筑网
























