FOJAB建筑事务所中标了瑞典伦德的新法院大楼方案设计,其业主是一家专门从事高度安全性建筑的房地产公司SpecialFastgheter。业主的目标是在瑞典建造最现代化的法院大楼。
新的地区法院是正在发展中的中央隆德区的一个组成部分,该区域紧邻铁路线西侧,而法院大楼位于名为Bjeredskarken的公园旁边。场地北侧的现有建筑群向公园打开,新法院大楼所在的地块融入城市肌理中后会将公园的光线和绿地引入建筑物中,同时在公园和铁路线之间形成清晰的边界。
法院是Kristallen市政办公大楼的一个组成部分,二者拥有同样立面肌理。建筑的南面朝向新建造的广场,参观者进入法院内时就会置身于一个两层通高的空间。建筑立面采用铜和玻璃这两种材质,垂直的立梃有助(BIM学习)于遮挡阳光,水平的隔板则有助于建筑形成一定的比例感。
整座建筑建造在一层高的石灰石基座上,倾斜的部分将公共空间的楼梯包含在内,楼梯通向周围的公园和城市景观地段。一面水镜将光线和绿树反射到建筑中,同时营造出一种恰到好处的距离感,保护隐私性功能和司法安全不受公众视线的干扰。
铜板、玻璃和石灰石与室内弯曲的油灰饰面板彼此和谐。向公众开放的区域设置在双层通高的开放空间内,巨大的玻璃窗面朝公园外面打开。透明部分和非透明部分之间的比例关系经过仔细设计之后可以平衡视野范围、日光照射和可见性之间的关系。建筑通过造型设计形成两个与员工食堂相邻的屋顶平台。
以区法院对分流的需求为出发点,将通往建筑内部的出入口分散设置可以有效解决不同人群的交通流线问题,进而激发城市空间的活力。法院内有四个不同的安全区供公众、检察官和非专业法官、其他人员以及被剥夺自由的人使用。
图纸
总平面图
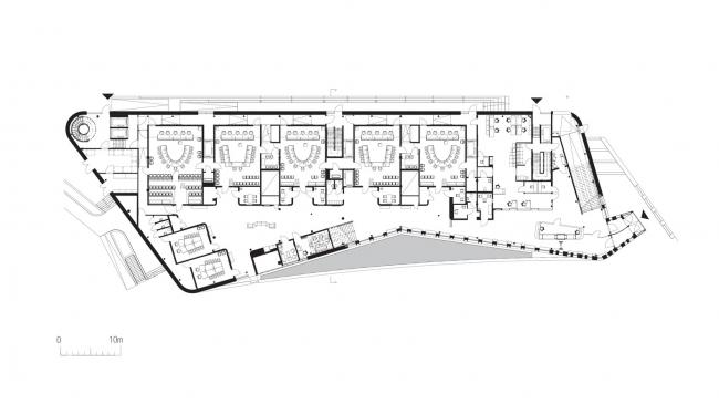
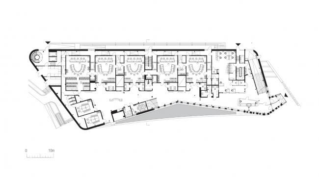
一层平面图
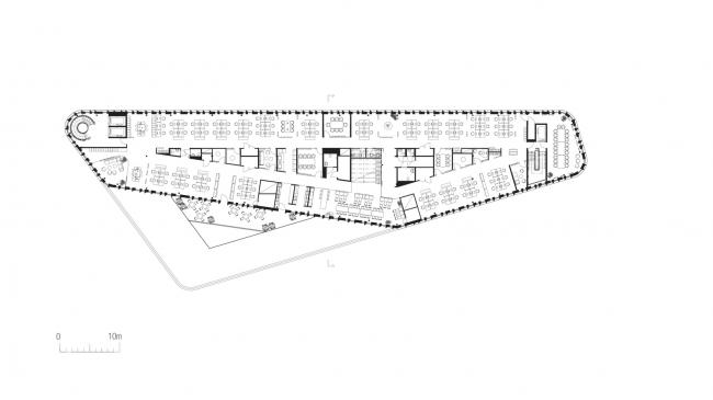
二层平面图
(BIM工作)五层平面图
剖面图
构造图
构造图
项目信息
建筑设计:FOJAB arkitekter
项目区位:瑞典,伦德
项目类型:法院大楼
建筑面积:12400.0平方米
项目时间:2018年
项目摄影:Felix Gerlach
室内设计:Tengbom
景观设计:Caroline Hjalmarsson and Caroline Lindqvist

BIM建筑网










































