建筑师彭乐乐,在包头设计了一座一千平米的建筑,坐落在显然是被挖掘得残破的荒山,与干涸了的河滩林场上,这个建筑的甲方是当地农民,也是承包这块林场的主人,这个农民叫张建,建筑用于民宿,以及被张建命名为“慢生活”吃喝玩乐等(BIM设计)功用的场地。说起这个农民选择彭乐乐来设计这个建筑,可以写成一篇有关建筑和审美观念变化的奇异新闻。因为,彭乐乐以给艺术家设计房子而闻名于建筑界,意思即:无论对于甲方还是乙方,农民与建筑师,都与此前甲乙双方的身份,毫无瓜葛。但这件事情就是成了,这个建筑就是按照彭乐乐各种设计理念的坚持下完成了,而且,这个建筑一经完成,就在所有喜欢寻找居住有创意民宿去住一住的“有心人”们找到,并在这些“有心人”的圈子里形成了口碑。并且在当地,这个建筑已然成为当地年轻人召开各种会议和派对的热门选择场所。于是,这些“有心人”中的好事者,开始在网上搜索这个建筑的甲方张建的“真实身份”,即怀疑张建不是一个真实的农民,而是一个有留学背景的“海归”,当然,张建就是一个地地道道的当地农民。我说这段话的意思,是这座私人定制的小型建筑,从甲方数次恳请这个设计过N个美术馆和艺术家工作室的建筑师,以及这个建筑落成,和造成的影响,事实上成为一个社会的审美事件:即人们在何种意义上欣赏并接受了一种接地气并且有创造性的当代建筑。或者说,一座建筑,无论大小,它的创造性,常常与能否形成一种社会的审美事件关联着。
创造性与“接地气”有关,中国古话叫做“天时地利人和”,对于这座被彭乐乐自己叫做“红石山房”的低成本小型建筑,它的创造性得益于此时(天时)此地(地利)此心(人和)。所谓此时,就是中国所有的现、当代文化和建筑,是经历了一百多年向西方现、当代文化学习的过程,在这个过程中,经历了中国传统文化与西方文化的碰撞、矛盾,以及借西方文化重新认识,和转换中国传统文化和建筑因素这个历史的交结点上,即它意味着近三十多年来,在大规模的城市化过程中,所积累的建筑上的弊病,诸如随处可见的水泥森林模式,耀眼的玻璃和金属光芒,以及对欧美现、当代建筑模式的抄袭和拼接所形成的审美“疲劳”,人们希望看到“接地气”并有创造性的当代建筑。事实上,近若干年诸如日本建筑师西泽立卫、隈研吾等人转换东方传统建筑的有创造性的试验。去年获得普利策奖的印度建筑师巴克里希纳.多西,他把早期西方学习的背景和本土文化相结合,发展出与其自身历史、文化以及本土传统相关的现代建筑语汇。乃至中国年轻的建筑师在理论和实践上也都取得一些“接地气”的经验和成就,如张永和较早试尝试做夯墙建筑的试验成果,王澍对中国传统建筑的研究和实践,当然还可以举出很多这样的例子,或者说在现代、当代建筑的全球化过程中,接受欧美现代当代建筑文化的营养的同时,注意研究并在建筑实践中转换自己传统文化和建筑因素,强调因地制宜,在中国乃至整个欧美之外的地区,已经蔚然成风。
此时或者天时,也正是彭乐乐在近几年的建筑实践中,已经形成了某种可以描述的经验与处理空间和选择建筑材质的语言脉络。这正是甲方——一个地道的农民但是有一颗不随大溜的审美诉求,居然在建筑杂志和建筑网络上,认可了这个独特的建筑师及其建筑风格,并数次来到宋庄彭乐乐的工作室,真诚地恳请彭乐乐接受这个建筑的设计,以及后来形成的一系列相同审美的“口碑”,这就“人和”即我说的“此心”——某种社会阶层的审美认同——所形成的社会审美事件。
地利或者此地,“此地”可以大到指中国这个环境,包括自然的、社会的,甚至是历史传统的此地。我这里主要说的是彭乐乐红石山房的环境,目前我们看到彭乐乐的“红石山房”以及她的其他建筑,其显而易见的语言方式就是“因地制宜”。比如宋庄她设计最有代表性的作品是她自己的工作室《百子甲壹》,以及《贵点艺术空间》【2】和《向京和瞿广慈工作室》【3】。空间设计自然是第一步的,但生成空间的建筑墙体各具特点,所以彭乐乐在设计空间的过程中,就不断地考察“此地”最适合也是最能与“此地”的环境——有时是自然、有时是社会历史——有关联的建筑材料。如《贵点艺术空间》外墙体,选择了七十年代流行,至今仍然在当地民居中可以看到的“水泥花墙砌块”,这个选择,让《贵点艺术空间》这个当代建筑,与“此地”的历史产生了一种审美趣味上的关联。这是一种有创意的材料转换,因为原来的水泥砌块只是作为零星装饰在墙体中使用,而彭乐乐在《贵点艺术空间》墙(BIM教程)体的设计上,采用整个墙体的外砌方式,就让这个现在几乎消失了的建筑材料,变成一种具有当代感觉的“新材料”。而答应了甲方张建邀请之后,彭乐乐没有带任何先见的框框,去包头项目现场仔细考察了周围环境——包括当地民居、自然环境、当地风俗,在这个过程中,她发现当地盛产各种石头,颜色,密度,硬度均不同,都是砌石堰最普通最常用的材料。她经过一番考察做试墙之后,决定使用当地大量生产花岗岩板所剩余的红石废料,来作为主要建筑材料。第一便宜;第二使用这种废料所带来的效果是:除了远看大块石头的砌筑质感之外,还有近处观看时,每一块石头取完石板之后,所留下痕迹丰富而不同,形成另一种近观肌理。这和《贵点艺术空间》的取材有着异曲同工之妙。材料确定下来了,甲方就地请了十几个本村的农民,采用最原始的砌筑方式,断断续续用了一年的时间,砌出高高低低十几个方形的功能“盒子”,当这些整体造型方整简洁,但质感粗粝的土红色“盒子”,嵌入河滩林场的时候,红石山房在林场绿荫的包裹下,它的整体效果与残缺的荒山、干涸的河滩,简直就象天造地设地从这块自然环境中生长出来的!
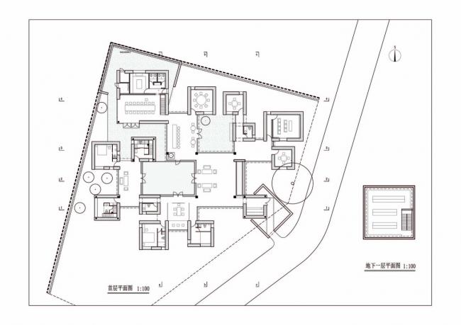
“红石山房”属于这个自然环境,就像彭乐乐的每一个作品,都属于特定的环境那样。当然更属于彭乐乐的设计理念——即与她这些年的设计语言脉络密切相关:她总是先选择最主要功能空间,并根据甲方的要求、地块的优劣、地势、日照朝向等自然环境,乃至社会风俗、周边建筑等条件去作综合思考之后,形成一个主要思路。思路一旦产生,她总是善于抓住象围棋布局中的“眼”【4】那样,首先把主要的功能空间,布局在合适的位置。然后,采用类似传统建筑中连廊的方式,串联起这些主要的功能空间,由此形成一个复杂有序并带有公共或多种灵活使用的“连接空间”,这些“连接空间”有时呈带状,有时似廊非廊,似厅非厅,或者既廊既厅,窄似廊,宽即厅,曲折回转,曲径通幽,连接着各个主要的功能空间。我知道早期彭乐乐设计的艺术家祁志龙工作室,这个建筑,“盒子”与“盒子”之间的“连廊”还只是连廊,连廊短,窄,矮,很有效率。彭乐乐一路实践下来,到了红石山房,“盒子”与“盒子”之间的“连廊”已非连廊,而是通过扩大了尺度的“连廊”让连廊感消失。红石山房一共有三组功能盒子。每组盒子的数量不同。第一组:客房,有六个“盒子”。第二组:娱乐,有四个“盒子”。第三组:餐饮,有两个“盒子”。还有一个入口独立的公共“盒子”。所有“盒子”的大小,高矮都不同,然后她用“连廊”来连接这些“盒子”,让所有的“盒子”与“盒子”之间的空间,形成类似“连廊”的公共空间,然后用玻璃封住“连廊”,造成多样并可以灵活使用的透明空间。无论是空间还是材质,“红石山房”都凸显出强烈的对比效果:粗粝的红石封闭的“盒子”与透明的玻璃空间,既突出了原始毛石与现代玻璃在材质上的强烈对比,又突出了空间的封闭与透明、内和外的对比——即进入功能空间的封闭感觉,走出功能空间,就是“连廊”的透明空间,在透明空间里,人们既可以感受“连廊”的曲折回转,又可以看到外面的树荫、大山、河滩,乃至于细细体味不同尺度的红石“盒子”、以及“盒子”与“盒子”之间的小庭院、天井、水池、各种有趣味的过道……总之就一千平米的建筑,极尽了各种空间趣味和多样的感觉。
红石山房还有一些细节,值得称道,比如我在现场看到的倾斜玻璃窗户,玻璃窗户上下有一个倾斜度,很明显包头风沙大,向内倾斜的窗户,会避免风沙在窗户上的存积,当然这都得益于她“因地制宜”的设计理念。还有把窗户从外墙墙面凸出出来的设计,除了避免风沙存积,这个玻璃窗户,设计在两面粗粝红毛石的夹缝中,格外有一种异样的对比效果,如此等等,还需要那些喜欢这个建筑的人去发现更多有趣又独特“接地气”的设计细节。
无论阳光灿烂,或是夕阳西下,甚至阴雨绵绵,由于包头郊外的天空格外透亮,蓝天白云,室外光线异常明亮,这时的红毛石墙与玻璃明亮的反光,既相互衬托,同时周围的山光树影又映照在大面积玻璃上,此时,你甚至怀疑:周围山光树影是建筑的一部分?还是红毛石墙体的建筑就是山光树影的一部分?“红石山房”完全融入到周围自然环境中了。
图纸
区位图
总平面图
屋顶平面图
一层平面图
二层平面图
剖面图
剖面图
剖面图
西北立面图
东南立面图
细部图
项目信息
建筑师:百子甲壹
地址:银洞山生态公园, 包头, 内蒙古, 中国
类别:酒店
主创建筑师:彭乐乐
项目建筑师:曹翼,朱晓
撰文:栗宪庭
建筑面积:1875.0 m2
项目年份:2016
摄影师:夏至

BIM建筑网

























