荣庐餐厅位于上海浦东陆家嘴金融开发区,比邻上海中心大厦等三座高塔,并且与上海环球金融中心内部动线相通。设计之初,业主提出餐厅虽处于地下二层,但希望用餐者感受到的是开阔通透的宜人环境,而非地下空间的憋闷闭塞,而空间整体上需兼具商务与休闲氛围。
鉴于荣庐为粤菜餐厅,同时考虑到现有层高超过5米的空间优势,我们意图将岭南庭院的概念引入室内,让就餐者仿佛身处庭院之中,以空间布局弱化地下空间的劣势。
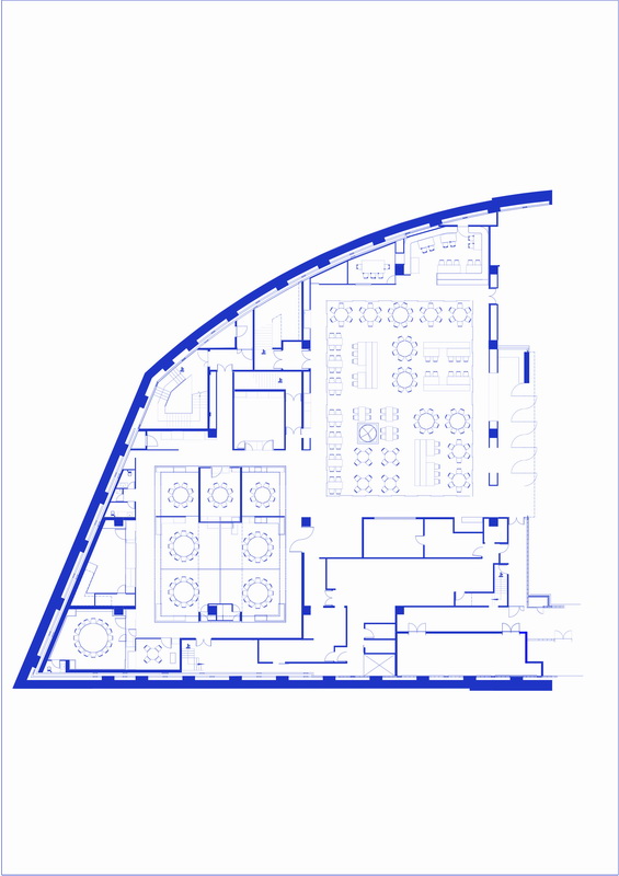
考虑到现有空间形态和餐厅包间较多等因素,我们认为岭南庭院中“前庭后园”的布局最为适合现有条件,该布局中宅居和庭园相对独立,各自成区,但没有实墙相隔,而是又分又连的特色正是我们想要带给使用者的意境:餐厅前部大堂区域为“庭园”,疏朗且开阔;后部包间区域为“宅居”,集中却可变。
大堂虽有4.5米通高的镀铜隔栅围合,但人在站立或行走时视线基本不会被遮挡,与两侧明档间和半私密包间仍保有视觉上的联系,如有需要,所有隔栅皆可移动或收至一侧。而考虑到入座后的就餐体验,在就坐者的人视高度,通过隔栅横向构件密度的增加形成一定的视线遮挡,适当的提升了私密性。
“庭园”内部,我们设置了一个两米见方的“树池”,顾及到地下空间植物的维护难度,“树”以大型花艺装置取代,并可根据季节进行更换。四组卡座的设置一方面增加了具有庭园感的空间层次,另一方面也适当阻隔了大空间内的人声嘈杂。顶部的隔栅吊顶,则呼应餐位的布局进行了几处错(BIM设计)落的开洞,透出的蓝绿色顶面亦能增加些许植被与蓝天包围的意境。
后部包间区域,我们用发光的盒子将数间大小不一的包间包裹其中,由于使用了半透明材质,包间外仍可看见内部人影憧憧,呼应了传统庭园与厢房间的虚实关系。包间内部延续使用了大堂中的主要材质,同时设置了多处移门,如有需要可将其中的四个包间隔墙完全打开,合并成为一间。
材质方面,为了更好的强调岭南风格,找到了广东云浮出产的哑光灰色大理石,并大面积以传统厅堂地面的错缝拼接方式作为主要铺地材料。
平面图
项目信息
功能:餐厅
设计时间:2016.9-2016.2
施工时间:2017.2-2017.9
地点:上海浦东
面积:1070平方米
团队:肖磊、叶力舟、徐萌、Pedro Ruiz Mazano、刘莹莹
类型:室内设计
状态:竣工
摄影师:加纳永一

BIM建筑网





















