在城市现有的大尺度中,这里正在营造一种新的筑居体验,试图对此时空演化之格局作出回应。当层层递进的空间关系渐次地在眼前展开时,对朱阁次第绮户开的江南大宅的联想也同时浮现,但它又是以一种更新的方式加以呈现的。
从一层主入口首先进入挑高的中央大厅,古铜色塑造的金属几何线条、水墨痕的灰色理石、灰咖色实木有节奏的纵横……编织出纹理丰富的立面,而立面则是一个连绵不断的平面,多重材质之间的转换交替通过不同肌理一致的方向性达成统一,接待、陈列等辅助功能区域则在这些立面之后铺陈展开。
用丰富的透明性表达空间关系也延续到了这些不同的立面——借助八条屏式的全景高窗设计,建筑外部的竹林景观成为室内中央核心区的背景图,而功能性立面则透露出更隐约、含蓄的朦胧之美。
顺着铜铸主楼梯继续向下,三面落地书架围合而成半私密的藏书及阅读空间,主楼梯作为一个被放大的海螺形结构,沟通上下、为地下引入自然光线的同时,亦可被解读为是对自然居所的内向的诗学隐喻。设计师张成喆钟爱意大利建筑师卡洛•斯卡帕(Carlo Scarpa)的作品精神,他相信空间的魅力正源于这些细节的力量。
法国作家茹尔•瓦莱斯(Jules Valles)曾说:“空间总是让我沉静下来”,张成喆同样认为:“空间,应当给予人宁静的思考”,宁静的空间往往给人以美妙和谐的时间感。汲取苏式园林门洞幽玄之意境,妙用于此,层次递进,景中置景,又如一轮皎洁明月,在与灯光的互相作用下投射映衬出清冽且不失柔美的灵光妙影,与空中流水的满目倩影,营造出极具空灵之感。
另一种进入空间的方式则是由地面沿着细仄的透光混凝土匣子拾级而下,参观的仪式感借以从中体现。明亮的光线在此时转成了黯淡,但可见两侧清晰的书圣笔墨,借以遥想当年的“茂林修竹”与“清流湍激”。
至负一层即抵达洽谈、展示、办公等功能区域,在这里布局的方式从中国传统造园方式中汲取灵感:偏径婉转、步移景异,月洞门与水景、置石、旋转楼梯皆形成多重对景关系。
与一楼空间内与外的处理手法相呼应,墙体在多媒体灯光装置的表现下化为一幅竹影清风图卷,间或又是绿竹猗猗,在原有的封闭建筑空间里不时地出现,如同开启了一扇又一扇通向外部世界的意象之窗。
水,代表时间,水,是媒介,沟通着各个功能空间。悬浮的透光玻璃装置对水捉摸不定的形态进行捕捉,它们从真实的水景中升起,在半空中形成镜像四散开去,在这些凝固的水滴的指引下,观者的时间叠加最终形成空间中的行走序列(BIM建筑)。
项目图纸
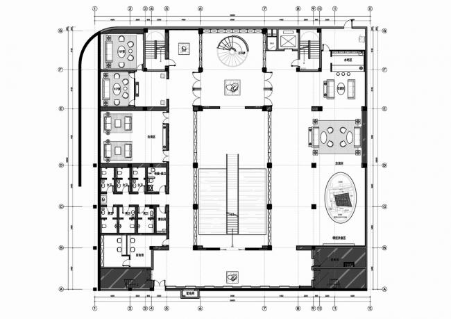
一层平面图
地下一层平面图
项目信息
项目名称:苏州世茂铜雀台售楼处
项目地点:苏州市吴中区石莲街1号
建筑面积:1433㎡
完成时间:2018年6月
设计单位:IADC涞澳设计
设计总监:张成喆
设计团队:路明鑫、唐韫慧、陈志强
文字作者:蒋颖
摄影师:朱海
关于张成喆
IADC涞澳设计创始人及创意总监 张成喆
张成喆的设计以冷静、简洁并富有创意的设计而著称。他认为室内设计虽然在材质、造型等方面可以顺应流行趋势,但始终不能远离其最核心的内容,就是实现空间的真正价值和本质。张成喆的设计作品常见于一流设计类媒体如《安邸AD》,《家居廊》等,亦多次荣获国内、外设计大奖。2006年出版个人作品集《喆思空间》。
设计之外,张成喆更是一个生活艺术家,喜欢随性洒脱、飘逸不羁的生活。他认为,要做一个好设计师,首先一定要做一个好的生活家,爱生活,才能有更多好的作品,这就是张成喆的设计秘诀,也是他的生活哲学。
张成喆历年获奖经历
2017 AD100
2017 A' Design Award & Competition金奖
2017 美国TOP100全球影响力华人设计师
2016 iF设计奖-最佳办公空间
2016 a&d Trophy Award-最佳商业空间
2016 Red Dot红点奖
2016 WAF-INSIDE-最佳展示类
2015 中国室内设计行业-年度精英设计师奖
2015 现代装饰国际传媒奖之年度样板空间大奖
2015 中国室内设计行业-最具国际影响力设计师奖
2015 法国双面神INNODESIGN PRIZE国际大奖金奖
2015 久诺金盘奖分赛区年度最佳住宅奖及媒体推荐奖
2015 国际设计大奖金创意奖地产类-金奖
2015 国际设计大奖金创意奖-十大知名设计师奖
2015 中国金外滩最佳售楼处空间奖
2015 IAI亚太区设计优胜奖
2014 现代装饰国际传媒奖之年度软装陈设空间大奖
关于IADC涞澳设计
IADC涞澳设计由知名室内设计师张成喆于2001年创建于上海。IADC在室内设计领域的创新理念、美学风格和专业服务方面成绩斐然,被业界认为是最卓越的室内设计公司之一。在过去的十(BIM学习)几年里,创始人张成喆与设计总监潘及带领一支杰出的多文化设计团队,致力于发挥设计的独创性和创造力,专注于为客户提供度身定制的设计服务,这种服务方式使得公司与众多国内外知名品牌长期保持愉快的合作,完成了上百个不同类型和风格的作品,涵盖室内、软装、建筑和景观设计领域,并多次荣获国际重要设计大奖。IADC涞澳设计作品常发表于国内外专业及时尚媒体如《安邸AD》,《家居廊》等,多次荣获国际、国内专业大奖。
“设计不仅仅是打造一种风格,更是“以人为本”实现空间的真正价值和本质”。创始人张成喆的设计简单而优雅,不受所谓美的形式主义的限制,旨在为空间使用者提供一套完美的设计解决方案 。二十几年的设计经验,张成喆始终坚持融合国际设计理念与本土的文化渊源,修炼一种至简至美的设计品位。

BIM建筑网



























