这是一座位于安第斯山脉(Andes)脚下的建筑。事实上,它是一组由12个不同体量组成的集合体,彼此之间以显而易见的地震缝隙隔开。如果只用房子或博物馆来形容这个混凝土块集群未免太过简单和谦虚了。
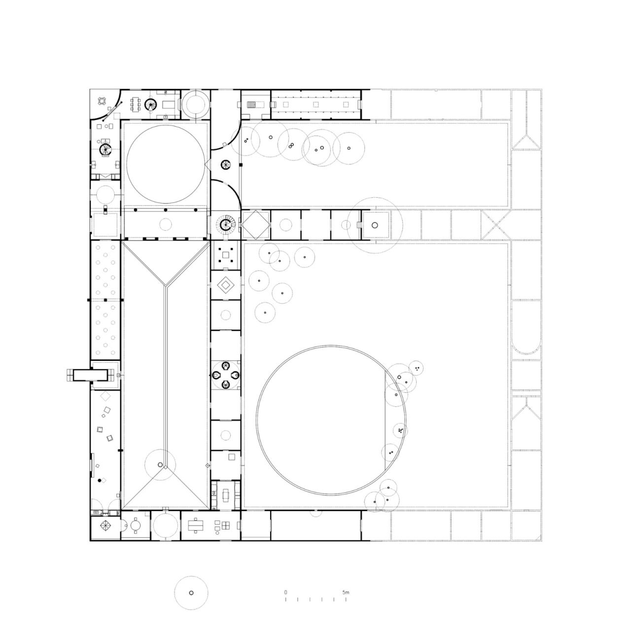
抛开其世俗性而言,这组建筑更像是一座回廊或修道院。它有一个端正严肃的轮廓,正方形的平面布局被不对称的十字分割开,周边和其核心都设有房间。
这些房间围绕四个不同的庭院水平展开:一个是自然倾斜的狭长地块,像是模拟了日出到日落;另一个也是狭长的,朝向北方但完全平坦,一条水流连接着一棵孤独的榛子树和两个三角末端; 一个圆形花圃填满了第三个庭院;最后一个是上一个的九倍大,设有一个圆形大池塘和几棵老树。
这个复杂结构名称是由最大庭院的大小决定的,它相当于一个斗牛场(在智利农村传统中称为“medialuna”)。
每个房间的内外空间质量都以多个方向的独特开口为标志,大多数为方形。模糊的功能分界线由此建立:起居室和工作室(用于绘画、写作或园艺)之间几乎没有对比性。
一些角落里会放上赋予空间温度的小物品;在另外一些角落里,重量、空处和不透明性在某种程度上变得具有纪念意义。这种布局的展开形式使屋顶平坦的水平延伸清晰明了,尽管从一层到两层的过渡几乎难以察觉。
这座建筑以筑城防御式的设计呈现——尽管被规则檐口的水平岩层分开的手工混凝土墙大大缺乏应有的厚度,但与这些粗糙的表面相比,庭院的墙体上有垂直或弧形的厚实屋檐。
项目图纸
△模型图
△模型图
△模型图
△轴测图
△总平面图
△一层平面图
△二层平面图
△三层平面图
△立面图
△剖面图
△剖面图
△剖面图
项目信息
建筑师:Pezo von Ellrichshausen
面积:2400m²
委托方:Fundación Artificial
建筑师:Mauricio Pezo, Sofía von Ellrichshausen
合作者:Emilie Kjaer, Maria Arnold, Isabella Hubsch, Thomas Harlander, Fabian Puller, Olga Herrenbrücks, Torun Stjern, Simon Bohnet, Amelie Bès, Elina Zempetakis, Jeffrey Wu, Jasper Lorenz, Hannah Frossard, Pablo Valsangiacomo
结构:Sergio Contreras
施工方:Constructora Natural
地点:智利,Yungay

BIM建筑网










































