中间的平衡新建了一个复杂的结构,从而形成了一个独属于自己的世界,在这里平等而自足。而建筑内部是出乎意料的,封闭却又开放,它既属于街道又属于这栋建筑。生成的密度让存在于空间和时间中的活动和多种功能都可以感受各种日常变化。
平行宇宙宏伟的新城市主干道、萨格勒布集市区域和环保舒适的现代新城住宅区,一起形成了城市中基本的参数,并以此决定了城市的位置标准。Seecel建筑位于诺维萨格勒布(Novi Zagreb)的城市主干道上。现代城市的形态,散落的立方建筑与绿地展现了城市的规模以及建造速度。
未来SEECEL大楼的设计方案结构展现了一个高度动态的商业综合体。其有三个相互主要联系的功能系统,分别是办公区、教育中心和酒店内容,他们组合成了一个动态的结构,可以满足全天多种活动需求。
建立一个新的动态结构是为了呼应现有建筑规模。其内部和外部没有明确的界限。这种密度将所有内容以单一规则统一起来,形成了一种独特的空间体验。新建立的空间秩序将功能的多样性转化成为为一个共有集体。而这个结构也仿佛建立了两个平行宇宙。不管周围物体是否四平八稳,它始终是有头有尾的。
光影变换未来中心的空间结构是由一个不断扩大的空间排列组合而成。通过在对角线上的一个不断增大的封闭系统,建立起了入口和其他区域空间之间的连接。他们的排列组合在入口的空白处展现出来,假装内部有更加密集的组织。建立起一种采用空/满、开/闭的比例的动态结构。房子的区域是垂直分层的,上层的办公层和酒店与最下面三层的关系是反向放置的。这使得下层的开阔和稀疏与上层的密集的使用率形成了对比,而二层就像镜子一样,一切都反过来了。这种空间中光与影的交错,将所有设计好的内部组织合并成一个独特的空间功能系统,通过将两个相同的布局反向重叠,形成了一个下层和上层的世界,在垂直方向上是一致的,但功能系统却不同。下面的楼层是入口,有餐饮和教育中心,而在第三层往上,就是相互之间有联系的办公区。
新地平线由工作、学习、社交和旅居产生出的内部结构的规律让我们可以深入了解建筑群的基本特征。研究一个小城市所具有的由房屋和街道组成的、内部与外部的关系。主体承重结构和空间关系的主体结构相一致。下面几层的区域由混凝土墙、板、梁组成。上面楼层就更轻,由混凝土和铝涂层组成。两个构造系统在某一点上部分重叠,从而保证了空间构造的统一性。屋顶系统很简单,由放置在上面几层的房梁系统组成。所有混凝土块的内部都是木质的。
正如建筑师强调的,下层结构是混凝土,而上层是轻质的、反光的、部分开放的。屋顶几乎是可以向四周移动的,于是这样通过提供遮阳和减少外部立面来增加日照、节约能源,以此来提高未来空间的质量。两个重叠结构的分界线形成了一种透视对位。动态排列,一系列封闭的建筑方块,在空间上交织在一起,形成自己的基准线。
项目图纸
△项目基地示意图
△总平面图
△地下一层平面图
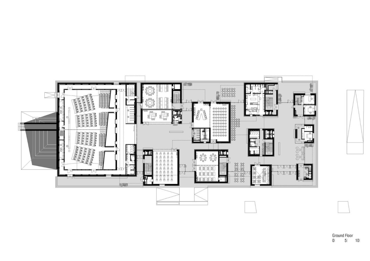
△一层平面图
△二层平面图
△三层平面图
△四层平面图
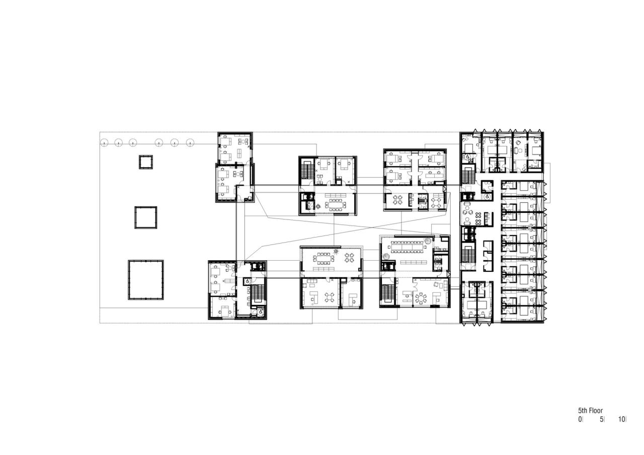
△五层平面图
△六层平面图
△屋顶平面图
△剖面图
△剖面图
△立面图
△立面图
△立面图
△立面图
△细部大样图
△细部大样图
△细部大样图
项目信息
建筑设计: SZA d.o.o
面积 : 14034 m²
项目年份 : 2020
摄影师 :Filip Beusan
厂家 : Schüco, ALPOLIC, Dorma, Gutta, HUECK, Jansen, Stöbich, Warema, Zumtobel, dormakaba
主创建筑师 : Igor Franić
合作方 : Simona Sović Štos
地点 : 克罗地亚,Zagreb

BIM建筑网




















































